Toggle navigation
(+356) 2164 9500
(+356) 9998 6779
info@sensaramalta.com
Head Office - Sensara Malta
Triq Santa Marija, Safi
09.00 to 19.00 hrs
Monday to Saturday
Home
Properties
Sales
Rentals
Foreign
About us
Services
Contacts
Send your request
Previous
Next
369,000 €
CLICK HERE for DETAILED PHOTOS
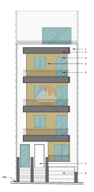
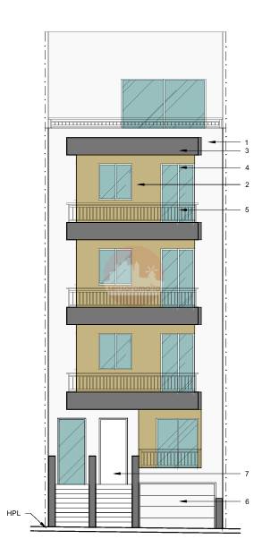
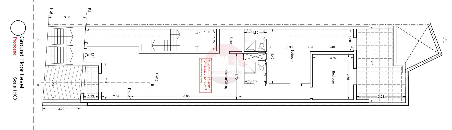
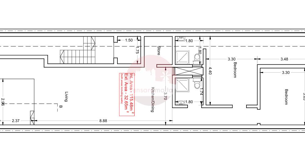
Zurrieq - 148sqm 2 Bedroom Elevated Ground Floor Maisonette + Optional Garage
Maisonette for sale • Zurrieq
Located in Zurrieq, two-bedroom finished elevated ground floor maisonette, currently available on plan circa 148sqm.
The layout comprises of an open plan kitchen/dining/living with a front terrace, a store room, main bathroom, two double bedrooms master with ensuite and a large back yard.
This property is being offered finished excluding bathrooms and internal doors and is estimate to be completed by 2027.
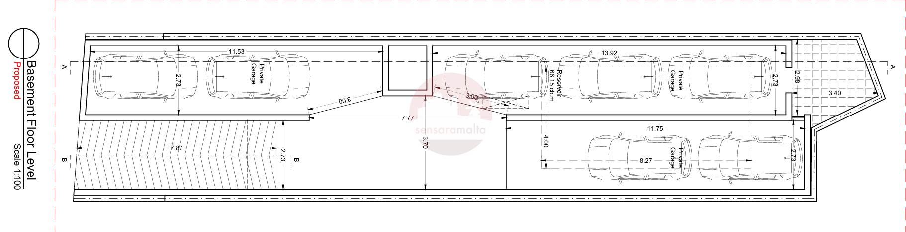
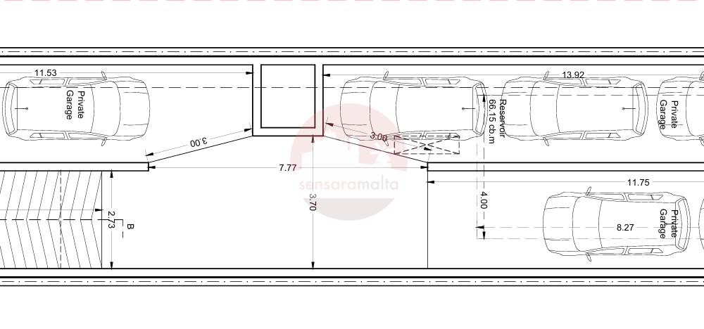
Optional 2 and 3 car garages are available at an extra price starting from 97K
Freehold
Rooms and Features
Code
V024846
Locality
Zurrieq
Property type
Maisonette
Price
369,000 €
Locals
1
Bedrooms
3
Sqm
140
Energetic class
Not applicable
Photos • Floorplans • Video
Photos
Options
Print Property sheet
Send property sheet by mail
Schedule a visit
RealEstate Brokers
Vella Ludric
+356 7909 1346
+356 9998 6779
+356 9998 6775
ludric@sensaramalta.com
Information request
Name *
Phone *
E-mail *
Request Details *
I authorize the processing of my personal data according Regolamento UE n. 679/2016 -
Privacy Policy
I authorize the processing of data for marketing purposes, promotional activities, commercial offers and market surveys.
Send
Share on
We also recommend
for Sale
Mosta - 3 Bedroom Highly Finished Elevated Maisonette + 2 Car Optional Garage
789,000 €
for Sale
Floriana - Luxurious Finished Maisonette / Office
1,100,000 €
for Sale
Naxxar - 2 Bedroom Finished Ground Floor Maisonette On Plan
360,000 €
Keep default settings X
Use of cookies
This site uses cookies. Our (own) cookies and those of our Partners (third party cookies) are used to offer you a unique experience with us. For this reason, together with our partners, we collect and process non-sensitive information (such as the identifier of your device or the pages you visit).
At any time you can delete, modify or verify the information you share in
Cookie preference
or in our
Cookie Policy
and
Privacy Policy
.
Necessary
Functional
Profiling
Analytics
Accept all
Decline all
Accept selected
Cookie preference