English
1,100,000 €

Floriana - Luxurious Finished Maisonette / Office

Maisonette for sale • Floriana
For Sale or To Let. Ready to move into, structurally converted and recently renovated to very high standards is this luxurious property with four independent main doors. Ideal for any reputable kind of business and/or professional.

Situated on the best street in Floriana close to all amenities and within walking distance from Malta’s Capital City, Valletta. Having magnificent Grand Harbour views and the three cities from Sir Luigi Preziosi Gardens and the surroundings.

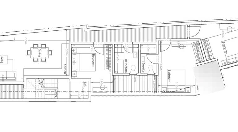
The ground level Class 4A Office has a footprint area of 167sqm and the upper level offer a generous gross floor area of 120sqm. Both levels used to be interconnected through an internal stairs which still exists. The Property benefits from an internal yard.

The Property enjoys a lot of natural light due to a number of large double glazed apertures. It also has high ceilings, keeping a cosy ambiance throughout all seasons of the year. Yet, it is fully air-conditioned with seven units. Newly equipped with all necessities and it is mostly furnished.

A reception desk, networks, internal/external surveillance cameras, fire safety devices, intruder alarm, digital & key-less access control automated sliding door and a high quality intercom system are already installed for the Office. The external façade is well looked after with polished travertine stone.

Both the ground level and the upper level are fitted with a beautiful oak kitchen, white quartz top and brand new appliances.

The Property has four bathrooms of which two include large showers. One toilet room is equipped for special needs persons. Further complimenting the Property are three 500ltr each water tanks including pumps, a reverse osmosis system, five TV’s, internal doors, curtains, several ceiling/wall light panels, four large chandeliers and a comfortable sofa bed. The water and electricity meters are also installed.

Property accommodates a good number of employees, an executive office, a boardroom, a server room and archiving/store area.

A 63sqm garage situated few minutes away is also made available by same owner.

Its strategic location, everything brand new & level of finish makes this property unique.
Rooms and Features
Code
V011188
Locality
Floriana
Property type
Maisonette
Price
1,100,000 €
Locals
1
Bedrooms
3
Bathrooms
4
Sqm
285
Garages
1
Terraces
1
Energetic class
A4
Property Conditions
New
Rank
Elegant
Position
See
View
Sea View
Orientation
Est
Garden
Common
Furniture
Furnished
Type living
Living room
Kitchen
Eat-In Kitchen
Heating
Independent
Hot Water
Independent
Fixtures
Wooden double glazed
Doors
New

Accessories: Air Conditioning, Handicap Bathroom, Double Glazing, Armored door, Network Data, Veranda, Video Intercom, Video Surveillance

RealEstate Brokers
Hughes Jeffrey
Hughes Jeffrey
+356 9980 0004
+356 9998 6779
+356 9998 6775
Information request
Send
Share on
Cookie preference