Toggle navigation
(+356) 2164 9500
(+356) 9998 6779
info@sensaramalta.com
Head Office - Sensara Malta
Triq Santa Marija, Safi
09.00 to 19.00 hrs
Monday to Saturday
Home
Properties
Sales
Rentals
Foreign
About us
Services
Contacts
Send your request
Previous
Next
343,000 €
CLICK HERE for DETAILED PHOTOS
Zurrieq - 2 Double Bedroom Finished Corner Apartment - Ready built
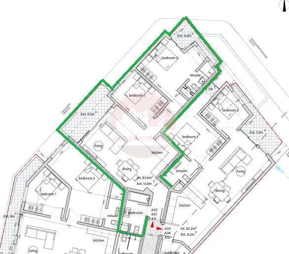
2 bedroom apartment for sale • Zurrieq
In Zurrieq comes this new highly finished development estimated to be finshed by June 2026.
Flooded with natural light, this first floor 2-bedroom corner apartment offers bright and airy living spaces. It comprises a spacious combined living, kitchen & dining complemented by a nice front terrace. Moreover it enjoys a well sized main bathroom, a spare double bedroom and a Main Bedroom served with ensuite + Balcony.
This apartment is already built and is being sold highly finished excluding bathrooms and internal doors. Optional garages available.
Rooms and Features
Code
V024107
Locality
Zurrieq
Property type
2 bedroom apartment
Price
343,000 €
Locals
1
Bedrooms
2
Bathrooms
2
Sqm
98
Balconies
1
Terraces
1
Floor
1
Energetic class
Nondescript
Photos • Floorplans • Video
Photos
Options
Print Property sheet
Send property sheet by mail
Schedule a visit
RealEstate Brokers
Tanti Charlene
+356 7934 5923
+356 9998 6779
+356 9998 6775
charlene.tanti@sensaramalta.com
Information request
Name *
Phone *
E-mail *
Request Details *
I authorize the processing of my personal data according Regolamento UE n. 679/2016 -
Privacy Policy
I authorize the processing of data for marketing purposes, promotional activities, commercial offers and market surveys.
Send
Share on
We also recommend
for Sale
Gharb Gozo - 3 Bedroom Furnished Apt + optional Garage
318,000 €
for Sale
St Paul's Bay - 2 Bedroom Apt Highly Finished
358,500 €
for Sale
Zabbar - 2 Bedroom + Study Ground Floor Apartment Fully Finished
285,000 €
Keep default settings X
Use of cookies
This site uses cookies. Our (own) cookies and those of our Partners (third party cookies) are used to offer you a unique experience with us. For this reason, together with our partners, we collect and process non-sensitive information (such as the identifier of your device or the pages you visit).
At any time you can delete, modify or verify the information you share in
Cookie preference
or in our
Cookie Policy
and
Privacy Policy
.
Necessary
Functional
Profiling
Analytics
Accept all
Decline all
Accept selected
Cookie preference