Toggle navigation
(+356) 2164 9500
(+356) 9998 6779
info@sensaramalta.com
Head Office - Sensara Malta
Triq Santa Marija, Safi
09.00 to 19.00 hrs
Monday to Saturday
Home
Properties
Sales
Rentals
Foreign
About us
Services
Contacts
Send your request
Previous
Next
390,000 €
CLICK HERE for DETAILED PHOTOS
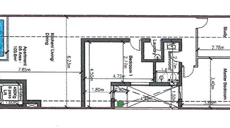
Naxxar - 2 Bedroom Finished 3rd Floor Apartment On Plan
2 bedroom apartment for sale • Naxxar
Located in Naxxar, two-bedroom finished third floor apartment, currently available on plan.
The layout comprises of an open plan kitchen/dining/living with a front terrace, main bathroom, box room, and two-bedrooms, master bedroom includes an ensuite bathroom.
This apartment is being offered finished excluding bathrooms and internal doors. It is estimate to be completed by January 2027.
Rooms and Features
Code
V024047
Locality
Naxxar
Property type
2 bedroom apartment
Price
390,000 €
Locals
1
Bedrooms
2
Bathrooms
2
Sqm
105
Balconies
1
Terraces
1
Floor
3
Energetic class
Nondescript
Photos • Floorplans • Video
Photos
Options
Print Property sheet
Send property sheet by mail
Schedule a visit
RealEstate Brokers
Hughes Jeffrey
+356 9980 0004
+356 9998 6779
+356 9998 6775
hughes@sensaramalta.com
Information request
Name *
Phone *
E-mail *
Request Details *
I authorize the processing of my personal data according Regolamento UE n. 679/2016 -
Privacy Policy
I authorize the processing of data for marketing purposes, promotional activities, commercial offers and market surveys.
Send
Share on
We also recommend
for Sale
Victoria Gozo - 2/3 Bedrooms Apartments / 2 Bedrooms Penthouse
195,000 €
for Sale
Fgura - 2 Bedroom Finished 1st Floor Apartment On Plan
265,000 €
for Sale
Zabbar - 2 Bedroom 2nd Floor Finished Apartment On Plan
307,000 €
Keep default settings X
Use of cookies
This site uses cookies. Our (own) cookies and those of our Partners (third party cookies) are used to offer you a unique experience with us. For this reason, together with our partners, we collect and process non-sensitive information (such as the identifier of your device or the pages you visit).
At any time you can delete, modify or verify the information you share in
Cookie preference
or in our
Cookie Policy
and
Privacy Policy
.
Necessary
Functional
Profiling
Analytics
Accept all
Decline all
Accept selected
Cookie preference