Toggle navigation
(+356) 2164 9500
(+356) 9998 6779
info@sensaramalta.com
Head Office - Sensara Malta
Triq Santa Marija, Safi
09.00 to 19.00 hrs
Monday to Saturday
Home
Properties
Sales
Rentals
Foreign
About us
Services
Contacts
Send your request
Previous
Next
665,000 €
CLICK HERE for DETAILED PHOTOS
Zurrieq - 2 Bedroom Ready Built Penthouse + Study + Pool
Penthouse for sale • Zurrieq
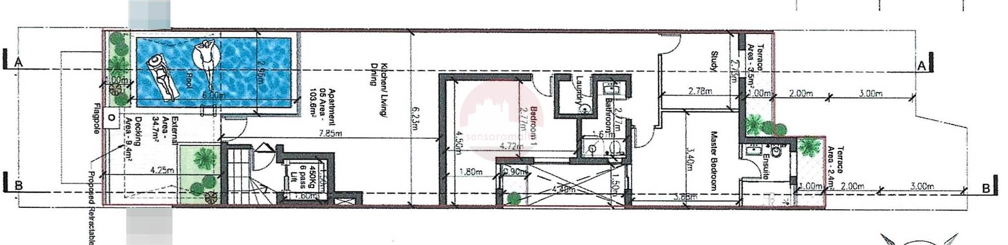
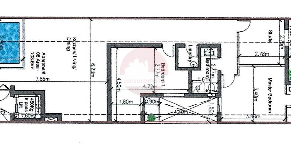
New Development in Zurrieq, construction started and is estimate to be ready by 2026 , this 2 bedroom + Study Penthouse, Finished (excluding bathrooms and internal Doors), in a block of 5 Units set on the 4th floor and served with lift. Complimenting this property is a 6x3m Pool & Airspace.
Layout comprises of an open plan kitchen/living/dining with a well sized front terrace where one can finds the pool and deck area, further in one finds the 1st bedroom with a balcony, laundry room, main bathroom, study with a back balcony and the main bedrooms with ensuite and other back balcony.
FREEHOLD
Rooms and Features
Code
V018438
Locality
Zurrieq
Property type
Penthouse
Price
665,000 €
Locals
1
Bedrooms
3
Bathrooms
2
Sqm
144
Balconies
3
Terraces
1
Floor
4
Energetic class
Not applicable
Accessories:
Swimming Pool
Photos • Floorplans • Video
Photos
Options
Print Property sheet
Send property sheet by mail
Schedule a visit
RealEstate Brokers
Aguis Lorna
+356 9961 6121
+356 9998 6779
+356 2164 9500
lorna@sensaramalta.com
Information request
Name *
Phone *
E-mail *
Request Details *
I authorize the processing of my personal data according Regolamento UE n. 679/2016 -
Privacy Policy
I authorize the processing of data for marketing purposes, promotional activities, commercial offers and market surveys.
Send
Share on
We also recommend
for Sale
Tarxien - Finished 3 Bedroom Penthouse + Airspace
460,000 €
for Sale
Santa Venera -4th floor 2 Bedroom Duplex Penthouse
395,000 €
for Sale
Fgura - 2 Bedroom Penthouse Fully finished (On Plan)
480,000 €
Keep default settings X
Use of cookies
This site uses cookies. Our (own) cookies and those of our Partners (third party cookies) are used to offer you a unique experience with us. For this reason, together with our partners, we collect and process non-sensitive information (such as the identifier of your device or the pages you visit).
At any time you can delete, modify or verify the information you share in
Cookie preference
or in our
Cookie Policy
and
Privacy Policy
.
Necessary
Functional
Profiling
Analytics
Accept all
Decline all
Accept selected
Cookie preference