Toggle navigation
(+356) 2164 9500
(+356) 9998 6779
info@sensaramalta.com
Head Office - Sensara Malta
Triq Santa Marija, Safi
09.00 to 19.00 hrs
Monday to Saturday
Home
Properties
Sales
Rentals
Foreign
About us
Services
Contacts
Send your request
Previous
Next
461,000 €
CLICK HERE for DETAILED PHOTOS
Bugibba - 2 Bedroom Ground Floor Older Type Maisonette + Views
Maisonette for sale • Bugibba
Corner ground floor, older type Maisonette in the heart of Bugibba with side views.
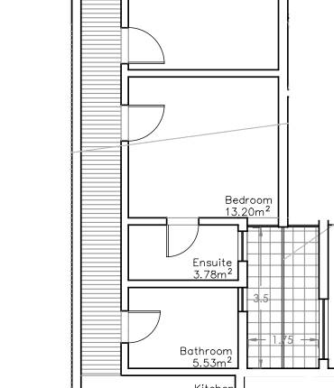
Comprises an open-plan kitchen/dining/living that can also be partially converted to include a one car street level garage, while still remaining spacious and comfortable, a main bathroom, an internal yard, and two double bedrooms, with the master bedroom also featuring an ensuite bathroom.
In need of some refurbishment, this older-type property, larger than usual and featuring higher ceilings. Offers great versatility and, once converted, will make a perfect family home.
Rooms and Features
Code
V023411
Locality
Bugibba
Property type
Maisonette
Price
461,000 €
Locals
1
Bedrooms
2
Bathrooms
2
Sqm
120
Terraces
1
Floor
Ground floor
Energetic class
Nondescript
Photos • Floorplans • Video
Photos
Options
Print Property sheet
Send property sheet by mail
Schedule a visit
RealEstate Brokers
Zahra Gaynor
+356 7933 5643
+356 9998 6775
+356 9998 6779
gaynor@sensaramalta.com
Information request
Name *
Phone *
E-mail *
Request Details *
I authorize the processing of my personal data according Regolamento UE n. 679/2016 -
Privacy Policy
I authorize the processing of data for marketing purposes, promotional activities, commercial offers and market surveys.
Send
Share on
We also recommend
for Sale
Mosta - 2 Bedroom Maisonette 116sqm
343,000 €
for Sale
Mosta - 3 Bedroom Finished Ground Floor Maisonette On Plan
415,000 €
for Sale
Qormi - 3 Bedroom Finished Elevated Maisonette + Yard + Terrace + Optional Garage
345,000 €
Keep default settings X
Use of cookies
This site uses cookies. Our (own) cookies and those of our Partners (third party cookies) are used to offer you a unique experience with us. For this reason, together with our partners, we collect and process non-sensitive information (such as the identifier of your device or the pages you visit).
At any time you can delete, modify or verify the information you share in
Cookie preference
or in our
Cookie Policy
and
Privacy Policy
.
Necessary
Functional
Profiling
Analytics
Accept all
Decline all
Accept selected
Cookie preference