Toggle navigation
(+356) 2164 9500
(+356) 9998 6779
info@sensaramalta.com
Head Office - Sensara Malta
Triq Santa Marija, Safi
09.00 to 19.00 hrs
Monday to Saturday
Home
Properties
Sales
Rentals
Foreign
About us
Services
Contacts
Send your request
Previous
Next
320,000 €
CLICK HERE for DETAILED PHOTOS
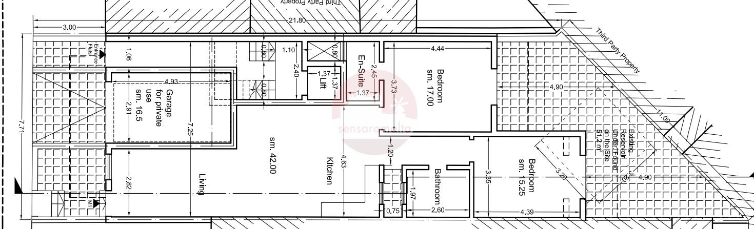
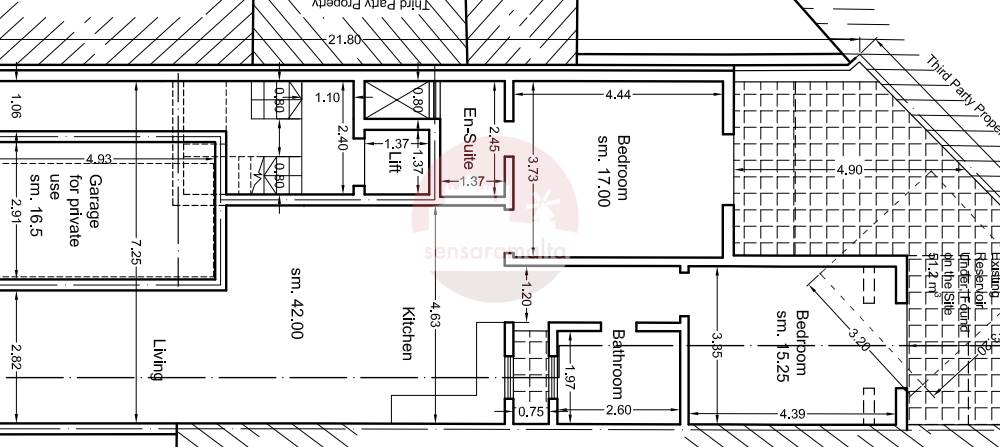
Birzebbugia – 2 Bedroom Ground Floor Maisonette + Back yard + Optional Garage (On Plan)
Maisonette for sale • Birzebbuga
Construction is set to commence soon on this exclusive residential block of only four units, situated in a highly sought-after area.
This ground floor maisonette is being offered finished, excluding bathrooms and internal doors.
The layout comprises a spacious open-plan kitchen, dining, and living area, two double bedrooms (main with en-suite), a main bathroom, a large backyard, and a private front patio.
An optional street-level one-car garage is available at an additional €80,000.
Freehold.
Rooms and Features
Code
V024741
Locality
Birzebbuga
Property type
Maisonette
Price
320,000 €
Locals
1
Bedrooms
2
Bathrooms
2
Sqm
100
Balconies
1
Sqm balcon
48.8
Terraces
2
Energetic class
Not applicable
Property Conditions
Next Realization
Accessories:
Double Glazing, Veranda
Photos • Floorplans • Video
Photos
Options
Print Property sheet
Send property sheet by mail
Schedule a visit
RealEstate Brokers
Schembri Maria Pawla
+356 7732 8183
+356 9998 6779
+356 9998 6775
pawla@sensaramalta.com
Information request
Name *
Phone *
E-mail *
Request Details *
I authorize the processing of my personal data according Regolamento UE n. 679/2016 -
Privacy Policy
I authorize the processing of data for marketing purposes, promotional activities, commercial offers and market surveys.
Send
Share on
We also recommend
for Sale
Mosta - 3 Bedroom Furnished Ground Floor Maisonette
476,500 €
for Sale
Fgura - 4 Bedroom 1st Floor Maisonette - Circa 192sqm
410,000 €
for Sale
Safi - 3 Bedroom Finished Maisonette On Plan
389,000 €
Keep default settings X
Use of cookies
This site uses cookies. Our (own) cookies and those of our Partners (third party cookies) are used to offer you a unique experience with us. For this reason, together with our partners, we collect and process non-sensitive information (such as the identifier of your device or the pages you visit).
At any time you can delete, modify or verify the information you share in
Cookie preference
or in our
Cookie Policy
and
Privacy Policy
.
Necessary
Functional
Profiling
Analytics
Accept all
Decline all
Accept selected
Cookie preference