Toggle navigation
(+356) 2164 9500
(+356) 9998 6779
info@sensaramalta.com
Head Office - Sensara Malta
Triq Santa Marija, Safi
09.00 to 19.00 hrs
Monday to Saturday
Home
Properties
Sales
Rentals
Foreign
About us
Services
Contacts
Send your request
Previous
Next
320,000 €
CLICK HERE for DETAILED PHOTOS
Siggiewi - 3 Bedroom Finished Apartment Ready Built
3+ bedroom apartment for sale • Siggiewi
Before scrolling, kindly note that a special discount is offered to Sensara Malta Clients !!!
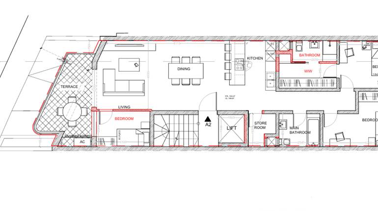
A ready-built Apartment located in a quiet residential area in Siggiewi, soon to be finished, offering a practical and comfortable layout ideal for family living.
The property features an open-plan kitchen, dining, and living area, three bedrooms including a master with en-suite and a walk in wardrobe, a main bathroom, and a separate washroom.
This Apartment is being offered finished, excluding bathrooms and internal doors, giving buyers the opportunity to add their own personal touch. Perfect as a family home or investment.
Rooms and Features
Code
V021981
Locality
Siggiewi
Property type
3+ bedroom apartment
Price
320,000 €
Locals
1
Bedrooms
3
Bathrooms
2
Sqm
117
Terraces
1
Floor
Ground floor
Energetic class
Nondescript
Photos • Floorplans • Video
Photos
Options
Print Property sheet
Send property sheet by mail
Schedule a visit
RealEstate Brokers
Schembri Maria Pawla
+356 7732 8183
+356 9998 6779
+356 9998 6775
pawla@sensaramalta.com
Information request
Name *
Phone *
E-mail *
Request Details *
I authorize the processing of my personal data according Regolamento UE n. 679/2016 -
Privacy Policy
I authorize the processing of data for marketing purposes, promotional activities, commercial offers and market surveys.
Send
Share on
We also recommend
for Sale
Marsaxlokk - 2nd Floor 3 Bedroom Finished Apartment
413,000 €
for Sale
Zebbiegh - 3 Double Bedroom Ground Floor Apt
450,000 €
for Sale
Sannat Gozo - 3 Bedroom Terraced House + Garage + Pool
455,000 €
Keep default settings X
Use of cookies
This site uses cookies. Our (own) cookies and those of our Partners (third party cookies) are used to offer you a unique experience with us. For this reason, together with our partners, we collect and process non-sensitive information (such as the identifier of your device or the pages you visit).
At any time you can delete, modify or verify the information you share in
Cookie preference
or in our
Cookie Policy
and
Privacy Policy
.
Necessary
Functional
Profiling
Analytics
Accept all
Decline all
Accept selected
Cookie preference