Toggle navigation
(+356) 2164 9500
(+356) 9998 6779
info@sensaramalta.com
Head Office - Sensara Malta
Triq Santa Marija, Safi
09.00 to 19.00 hrs
Monday to Saturday
Home
Properties
Sales
Rentals
Foreign
About us
Services
Contacts
Send your request
Previous
Next
420,000 €
CLICK HERE for DETAILED PHOTOS
Zebbug - 3 Bed 3 Bath Fully Finished Apt (On Plan)
3+ bedroom apartment for sale • Zebbug
Presently on plan and set for completion in shell form by June 2026 and fully finished, including bathrooms and internal doors by the end of 2026.
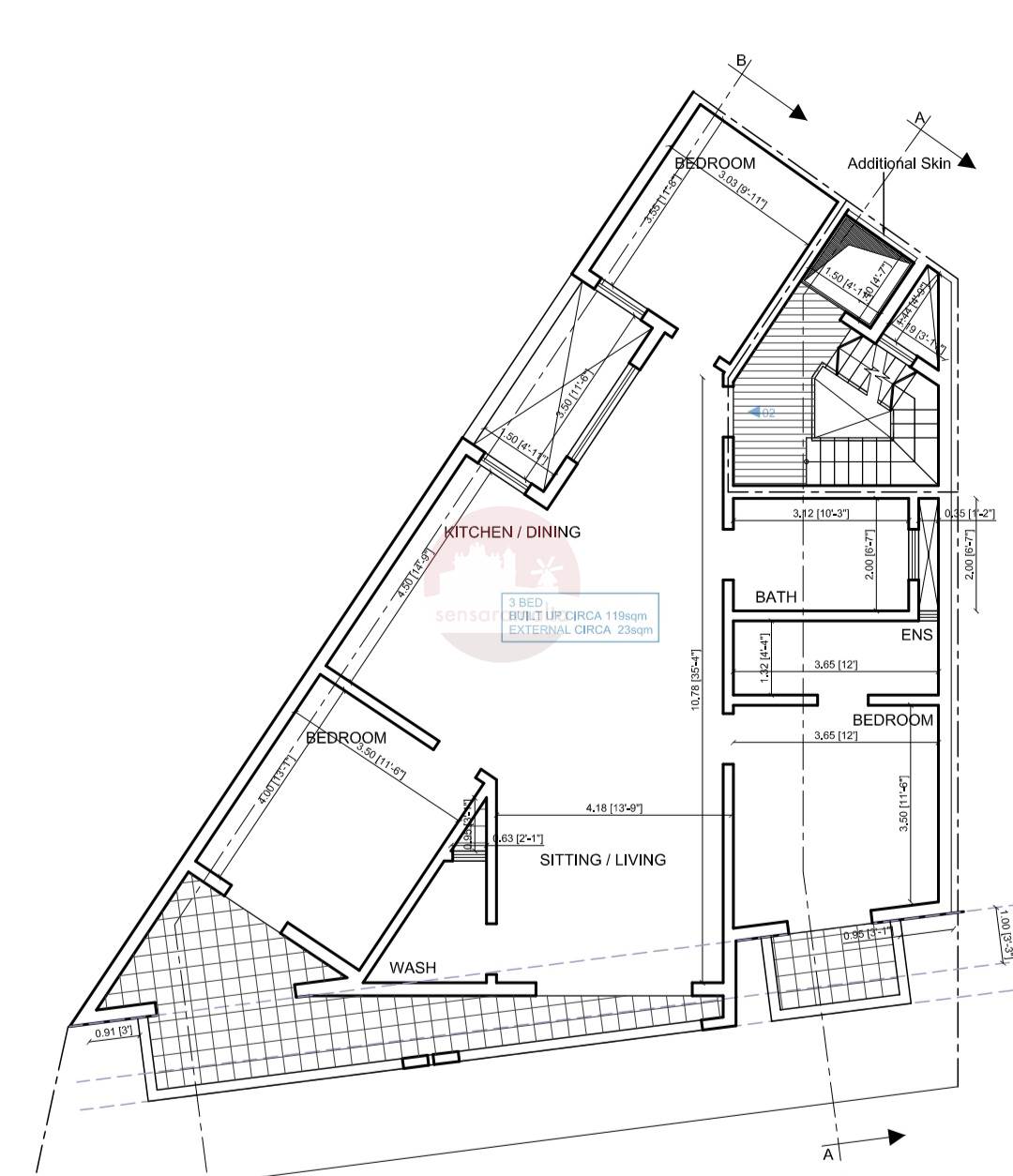
This spacious third-floor apartment in Żebbuġ presents a rare opportunity in today’s market, located within a small, exclusive block featuring just one unit per floor.
Accommodation includes a squarish open plan kitchen/dining/living with a spacious front terrace, three double bedrooms master with ensuite, two bathrooms, and a balcony.
This property stands out for its superior layout and finish—truly a standout option compared to standard new developments in the area.
Rooms and Features
Code
V022023
Locality
Zebbug
Property type
3+ bedroom apartment
Price
420,000 €
Locals
1
Bedrooms
3
Bathrooms
3
Sqm
142
Balconies
1
Terraces
1
Floor
3
Energetic class
Nondescript
Property Conditions
New
Furniture
Not Furnished
Kitchen
Open Kitchen
Accessories:
Elevator, Double Glazing, Laundry
Photos • Floorplans • Video
Photos
Options
Print Property sheet
Send property sheet by mail
Schedule a visit
RealEstate Brokers
Grima Keith
+356 7902 0587
+356 9998 6775
+356 9998 6779
keith@sensaramalta.com
Information request
Name *
Phone *
E-mail *
Request Details *
I authorize the processing of my personal data according Regolamento UE n. 679/2016 -
Privacy Policy
I authorize the processing of data for marketing purposes, promotional activities, commercial offers and market surveys.
Send
Share on
We also recommend
for Sale
Mosta, Already Built ** Finished 3 Bedroom Apartment with terrace & balcony ** optional Garages
394,000 €
for Sale
Birkirkara (Fleur De Lys) - 3 Bedroom Apartment + Terrace + Roof
369,000 €
for Sale
Luqa - 3 Bed,2 Bath Finished 2nd Flr Apartment
322,500 €
Keep default settings X
Use of cookies
This site uses cookies. Our (own) cookies and those of our Partners (third party cookies) are used to offer you a unique experience with us. For this reason, together with our partners, we collect and process non-sensitive information (such as the identifier of your device or the pages you visit).
At any time you can delete, modify or verify the information you share in
Cookie preference
or in our
Cookie Policy
and
Privacy Policy
.
Necessary
Functional
Profiling
Analytics
Accept all
Decline all
Accept selected
Cookie preference