Toggle navigation
(+356) 2164 9500
(+356) 9998 6779
info@sensaramalta.com
Head Office - Sensara Malta
Triq Santa Marija, Safi
09.00 to 19.00 hrs
Monday to Saturday
Home
Properties
Sales
Rentals
Foreign
About us
Services
Contacts
Send your request
Previous
Next
389,000 €
CLICK HERE for DETAILED PHOTOS
Zurrieq - 140sqm 3 Bedroom Finished Apartment + Optional Garage - (On Plan)
3+ bedroom apartment for sale • Zurrieq
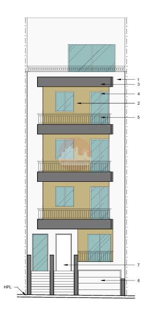
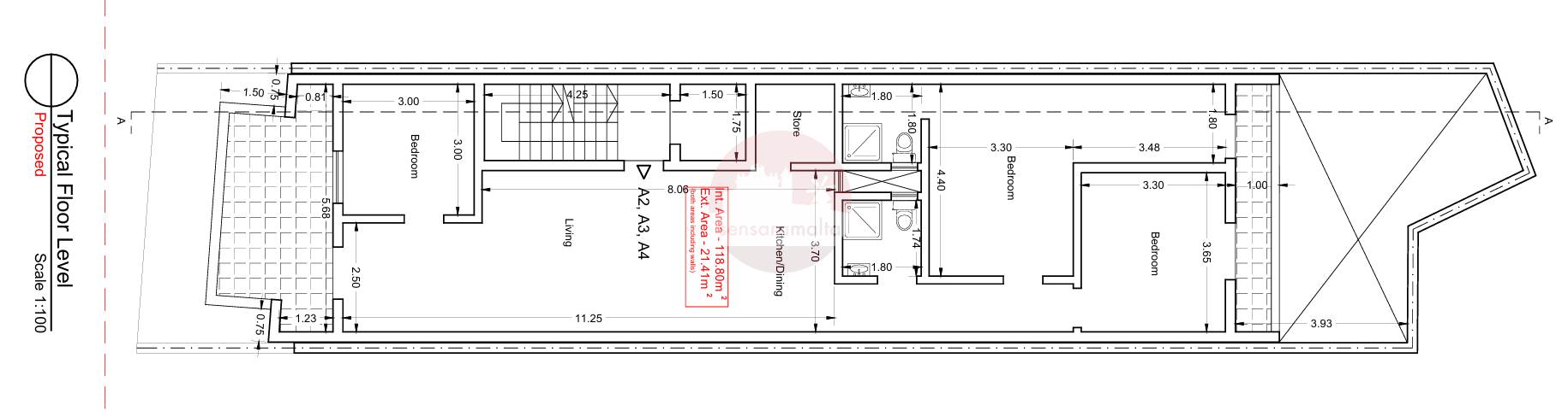
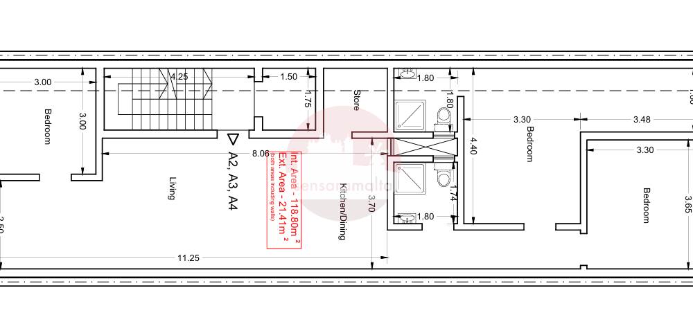
Located in Zurrieq, 3rd floor three - bedroom finished apartment currently available on plan circa 140sqm and with lift.
The layout comprises of an open plan kitchen/dining/living with a large front balcony, a store room, main bathroom, three bedrooms master with ensuite and a back balcony.
This property is being offered finished excluding bathrooms and internal doors and is estimate to be completed by 2027.
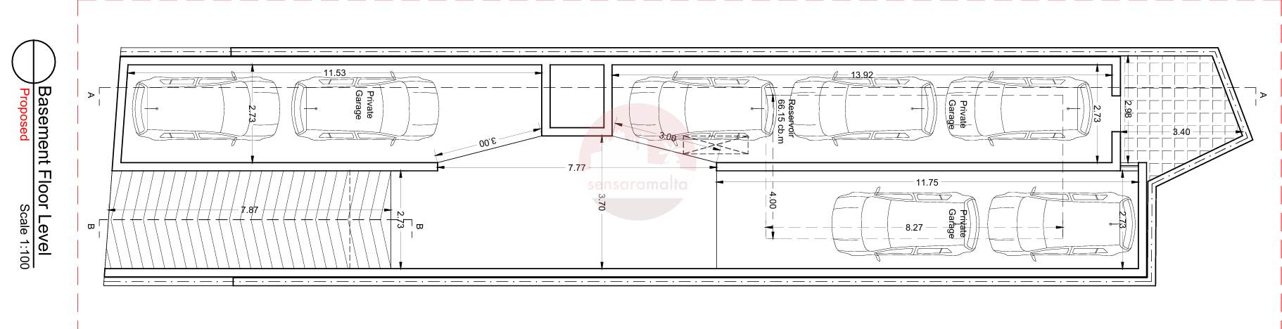
Optional 2 and 3 car garages are available at an extra price starting from 97K
Freehold
Rooms and Features
Code
V024847
Locality
Zurrieq
Property type
3+ bedroom apartment
Price
389,000 €
Locals
1
Bedrooms
3
Bathrooms
2
Sqm
140
Balconies
2
Energetic class
Not applicable
Photos • Floorplans • Video
Photos
Options
Print Property sheet
Send property sheet by mail
Schedule a visit
RealEstate Brokers
Vella Ludric
+356 7909 1346
+356 9998 6779
+356 9998 6775
ludric@sensaramalta.com
Information request
Name *
Phone *
E-mail *
Request Details *
I authorize the processing of my personal data according Regolamento UE n. 679/2016 -
Privacy Policy
I authorize the processing of data for marketing purposes, promotional activities, commercial offers and market surveys.
Send
Share on
We also recommend
for Sale
Pieta - 3 Bedroom 4th Floor Finished Apartment + Views On Plan
771,000 €
for Sale
Marsaxlokk - 3rd Floor 3 Bedroom Finished Apartment (On Plan)
435,000 €
for Sale
San Pawl Il-Bahar - 3 Bedroom Second Floor Apartment
307,000 €
Keep default settings X
Use of cookies
This site uses cookies. Our (own) cookies and those of our Partners (third party cookies) are used to offer you a unique experience with us. For this reason, together with our partners, we collect and process non-sensitive information (such as the identifier of your device or the pages you visit).
At any time you can delete, modify or verify the information you share in
Cookie preference
or in our
Cookie Policy
and
Privacy Policy
.
Necessary
Functional
Profiling
Analytics
Accept all
Decline all
Accept selected
Cookie preference