Toggle navigation
(+356) 2164 9500
(+356) 9998 6779
info@sensaramalta.com
Head Office - Sensara Malta
Triq Santa Marija, Safi
09.00 to 19.00 hrs
Monday to Saturday
Home
Properties
Sales
Rentals
Foreign
About us
Services
Contacts
Send your request
Previous
Next
350,000 €
CLICK HERE for DETAILED PHOTOS
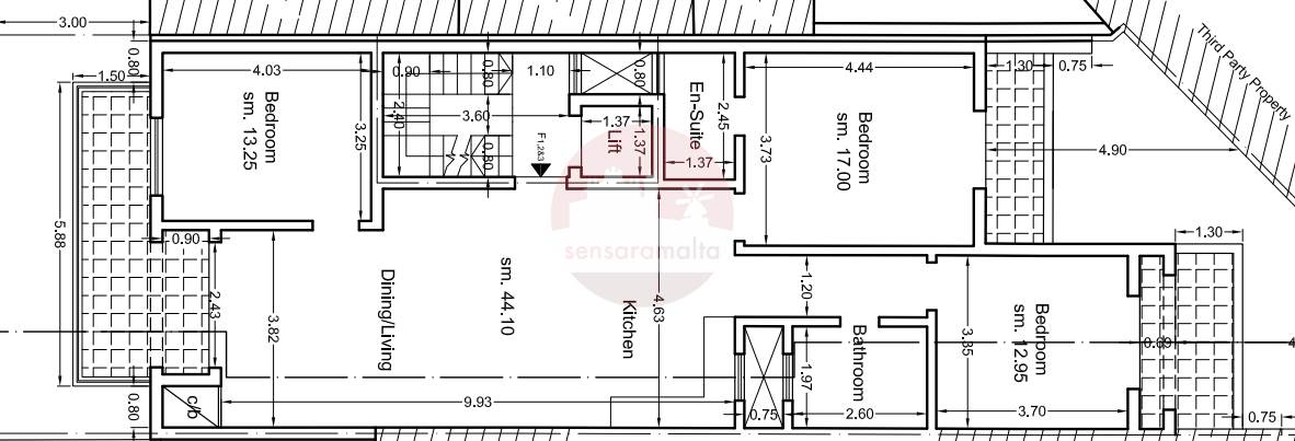
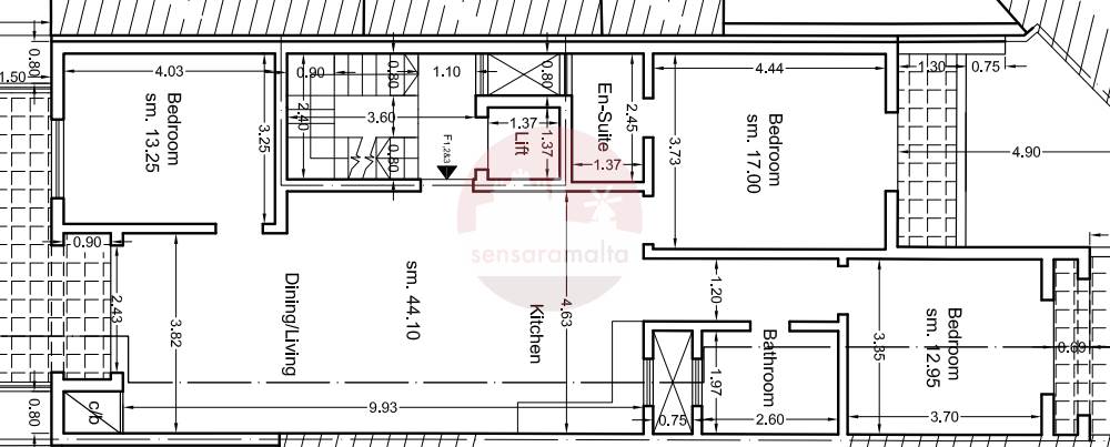
Birzebbugia - 3rd Floor 3 Bedroom Apartment + Terrace + Balconies (On Plan)
3+ bedroom apartment for sale • Birzebbuga
Offered on plan, with construction starting very soon, these three-bedroom apartments form part of an exclusive residential block of only four units, situated in a highly sought-after area.
The layout comprises a spacious open-plan kitchen, dining, and living area leading onto a comfortable, non-overlooked front terrace.
The property includes three double bedrooms, with the main bedroom enjoying an en-suite, while the two rear bedrooms are both served with a shared back balcony. A main bathroom also complements the layout.
These apartments are being offered finished, excluding bathrooms and internal doors.
Freehold.
Rooms and Features
Code
V024744
Locality
Birzebbuga
Property type
3+ bedroom apartment
Price
350,000 €
Locals
1
Bedrooms
3
Bathrooms
2
Sqm
121
Balconies
2
Terraces
1
sqm Terrace
19.25
Floor
3
Energetic class
Not applicable
Property Conditions
Next Realization
Accessories:
Double Glazing
Photos • Floorplans • Video
Photos
Options
Print Property sheet
Send property sheet by mail
Schedule a visit
RealEstate Brokers
Schembri Maria Pawla
+356 7732 8183
+356 9998 6779
+356 9998 6775
pawla@sensaramalta.com
Information request
Name *
Phone *
E-mail *
Request Details *
I authorize the processing of my personal data according Regolamento UE n. 679/2016 -
Privacy Policy
I authorize the processing of data for marketing purposes, promotional activities, commercial offers and market surveys.
Send
Share on
We also recommend
for Sale
Birzebbuga - 3 Bedroom 2nd Floor Finished Apartment On Plan
343,000 €
for Sale
Birzebbuga - 3 Bedroom 3rd Floor Finished Apartment On Plan
353,000 €
for Sale
Birzebbuga - 3 Bedroom 2nd Floor Finished Apartment On Plan
338,000 €
Keep default settings X
Use of cookies
This site uses cookies. Our (own) cookies and those of our Partners (third party cookies) are used to offer you a unique experience with us. For this reason, together with our partners, we collect and process non-sensitive information (such as the identifier of your device or the pages you visit).
At any time you can delete, modify or verify the information you share in
Cookie preference
or in our
Cookie Policy
and
Privacy Policy
.
Necessary
Functional
Profiling
Analytics
Accept all
Decline all
Accept selected
Cookie preference