Toggle navigation
(+356) 2164 9500
(+356) 9998 6779
info@sensaramalta.com
Head Office - Sensara Malta
Triq Santa Marija, Safi
09.00 to 19.00 hrs
Monday to Saturday
Home
Properties
Sales
Rentals
Foreign
About us
Services
Contacts
Send your request
Previous
Next
676,000 €
CLICK HERE for DETAILED PHOTOS
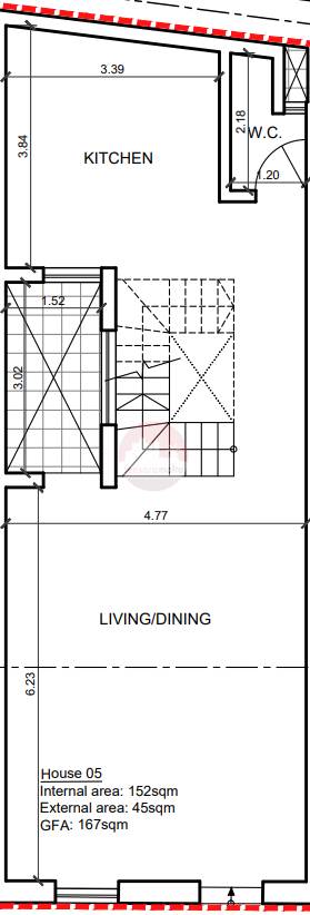
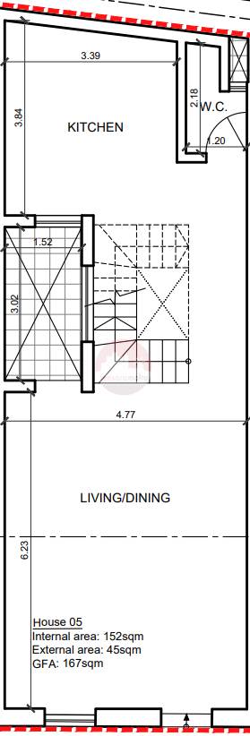
Zebbug - 3 Bedroom Town House On Plan + Roof + Garage
Town House for sale • Zebbug
Located in Zebbug in a UCA area, three-bedroom Townhouse, currently available on plan.
This Townhouse consists of a two car garage at a basement level, kitchen/dining/living and a bathroom at ground floor level, a bathroom and three double bedrooms on the first floor level. The master bedroom includes an ensuite bathroom.
One of the main highlights of this townhouse is the large roof level, which includes a spacious washroom and access to the roof and full airspace with space for a pool.
This property is being offered in shell form and is estimate to be completed by 2027.
Rooms and Features
Code
V024704
Locality
Zebbug
Property type
Town House
Price
676,000 €
Locals
1
Bedrooms
3
Bathrooms
3
Sqm
197
Balconies
1
Terraces
1
Energetic class
Nondescript
Photos • Floorplans • Video
Photos
Options
Print Property sheet
Send property sheet by mail
Schedule a visit
RealEstate Brokers
Zahra Gaynor
+356 7933 5643
+356 9998 6775
+356 9998 6779
gaynor@sensaramalta.com
Information request
Name *
Phone *
E-mail *
Request Details *
I authorize the processing of my personal data according Regolamento UE n. 679/2016 -
Privacy Policy
I authorize the processing of data for marketing purposes, promotional activities, commercial offers and market surveys.
Send
Share on
We also recommend
for Sale
Marsalforn Gozo - 3 Bedroom Terraced House
360,000 €
for Sale
Birkirkara - 2 Bedroom Townhouse + Full Roof
615,000 €
for Sale
Zebbug - Unconverted Townhouse + Garden + Garage
750,000 €
Keep default settings X
Use of cookies
This site uses cookies. Our (own) cookies and those of our Partners (third party cookies) are used to offer you a unique experience with us. For this reason, together with our partners, we collect and process non-sensitive information (such as the identifier of your device or the pages you visit).
At any time you can delete, modify or verify the information you share in
Cookie preference
or in our
Cookie Policy
and
Privacy Policy
.
Necessary
Functional
Profiling
Analytics
Accept all
Decline all
Accept selected
Cookie preference