Toggle navigation
(+356) 2164 9500
(+356) 9998 6779
info@sensaramalta.com
Head Office - Sensara Malta
Triq Santa Marija, Safi
09.00 to 19.00 hrs
Monday to Saturday
Home
Properties
Sales
Rentals
Foreign
About us
Services
Contacts
Send your request
Previous
Next
332,500 €
CLICK HERE for DETAILED PHOTOS
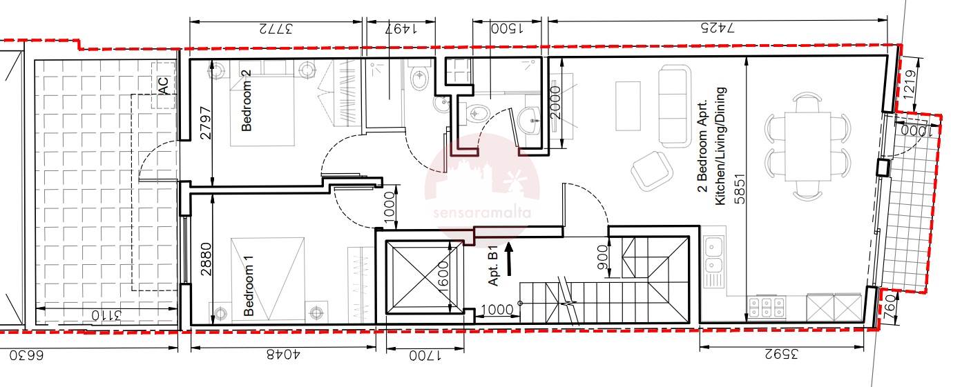
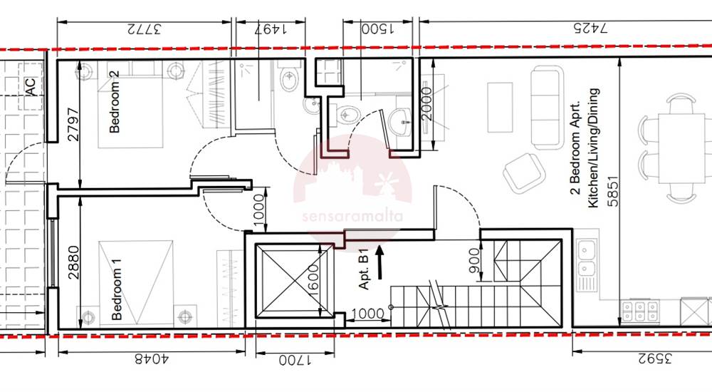
Mellieha - 2 Bedroom Finished 1st Floor Apartment Ready Built
2 bedroom apartment for sale • Mellieha
Located on the first floor, two-bedroom finished ready built apartment.
The layout comprises of an open plan kitchen/dining/living leading to a front balcony, main bathroom and two double bedrooms. The master bedroom includes an ensuite bathroom. Both bedrooms are connected to a back terrace.
This property is being offered finished excluding bathrooms and internal doors.
Rooms and Features
Code
V024695
Locality
Mellieha
Property type
2 bedroom apartment
Price
332,500 €
Locals
1
Bedrooms
2
Bathrooms
1
Sqm
110
Balconies
1
Floor
1
Energetic class
Nondescript
Photos • Floorplans • Video
Photos
Options
Print Property sheet
Send property sheet by mail
Schedule a visit
RealEstate Brokers
Zahra Gaynor
+356 7933 5643
+356 9998 6775
+356 9998 6779
gaynor@sensaramalta.com
Schembri Maria Pawla
+356 7732 8183
+356 9998 6779
+356 9998 6775
pawla@sensaramalta.com
Information request
Name *
Phone *
E-mail *
Request Details *
I authorize the processing of my personal data according Regolamento UE n. 679/2016 -
Privacy Policy
I authorize the processing of data for marketing purposes, promotional activities, commercial offers and market surveys.
Send
Share on
We also recommend
for Sale
Qala Gozo - 2 Bdr Furnished Apt + Communal Pool
359,000 €
for Sale
Ta' Xbiex - 1st Floor 2 Bedroom Finished Apartment + Yard
450,000 €
for Sale
Balzan - Third Floor Finished 2 Bedroom Apartment On Plan
300,000 €
Keep default settings X
Use of cookies
This site uses cookies. Our (own) cookies and those of our Partners (third party cookies) are used to offer you a unique experience with us. For this reason, together with our partners, we collect and process non-sensitive information (such as the identifier of your device or the pages you visit).
At any time you can delete, modify or verify the information you share in
Cookie preference
or in our
Cookie Policy
and
Privacy Policy
.
Necessary
Functional
Profiling
Analytics
Accept all
Decline all
Accept selected
Cookie preference