Toggle navigation
(+356) 2164 9500
(+356) 9998 6779
info@sensaramalta.com
Head Office - Sensara Malta
Triq Santa Marija, Safi
09.00 to 19.00 hrs
Monday to Saturday
Home
Properties
Sales
Rentals
Foreign
About us
Services
Contacts
Send your request
Previous
Next
400,000 €
CLICK HERE for DETAILED PHOTOS
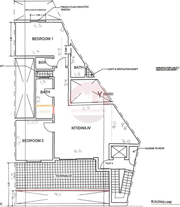
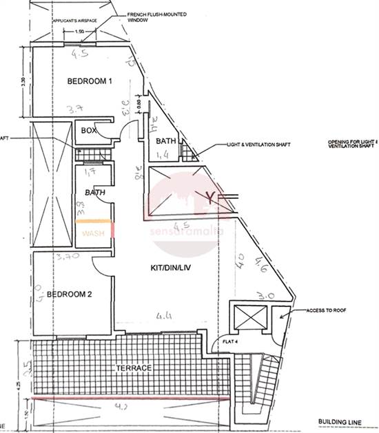
Birkirkara - 2 Bedroom 110sqm Highly Finished Penthouse + Airspace
Penthouse for sale • Birkirkara
Situated in a highly desirable area, this newly built property is finished to a high standard, including fitted bathrooms and PVC apertures. Set within a small, exclusive residential block of just four units, it offers both privacy and comfort.
The layout comprises a spacious open-plan kitchen, living, and dining area overlooking a private front terrace of approximately 20sqm. The property features two double bedrooms, with the main bedroom enjoying an en-suite, a main bathroom, a laundry room, and an additional box room for storage.
This property is being offered freehold, including full ownership of the roof and airspace. An optional two-car garage is also available for rent.
Rooms and Features
Code
V024687
Locality
Birkirkara
Property type
Penthouse
Price
400,000 €
Locals
1
Bedrooms
2
Bathrooms
2
Sqm
110
Terraces
1
sqm Terrace
20
Floor
4
Energetic class
Not applicable
Property Conditions
New
Accessories:
Double Glazing, Laundry, Veranda
Photos • Floorplans • Video
Photos
Options
Print Property sheet
Send property sheet by mail
Schedule a visit
RealEstate Brokers
Schembri Maria Pawla
+356 7732 8183
+356 9998 6779
+356 9998 6775
pawla@sensaramalta.com
Information request
Name *
Phone *
E-mail *
Request Details *
I authorize the processing of my personal data according Regolamento UE n. 679/2016 -
Privacy Policy
I authorize the processing of data for marketing purposes, promotional activities, commercial offers and market surveys.
Send
Share on
We also recommend
for Sale
Siggiewi - Luxury 3 Bedroom Penthouse With Pool
1,205,000 €
for Sale
Qormi - Finished 1 Bedroom Penthouse with large terrace and airspace
275,000 €
for Sale
Qormi - 3 Bedroom Penthouse + Terrace + Full roof + Airspace + Optional Garage
480,000 €
Keep default settings X
Use of cookies
This site uses cookies. Our (own) cookies and those of our Partners (third party cookies) are used to offer you a unique experience with us. For this reason, together with our partners, we collect and process non-sensitive information (such as the identifier of your device or the pages you visit).
At any time you can delete, modify or verify the information you share in
Cookie preference
or in our
Cookie Policy
and
Privacy Policy
.
Necessary
Functional
Profiling
Analytics
Accept all
Decline all
Accept selected
Cookie preference