Toggle navigation
(+356) 2164 9500
(+356) 9998 6779
info@sensaramalta.com
Head Office - Sensara Malta
Triq Santa Marija, Safi
09.00 to 19.00 hrs
Monday to Saturday
Home
Properties
Sales
Rentals
Foreign
About us
Services
Contacts
Send your request
Previous
Next
399,500 €
CLICK HERE for DETAILED PHOTOS
Mqabba - 2nd Floor 3 Bedroom Furnished Apartment
3+ bedroom apartment for sale • Mqabba
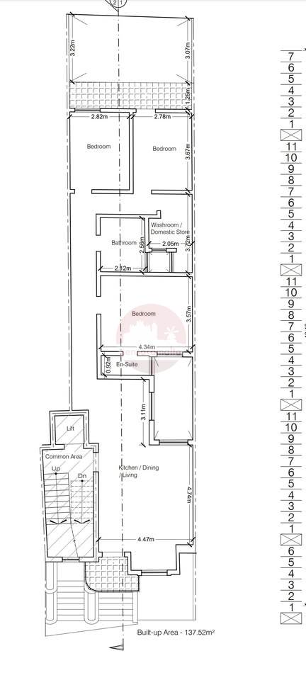
Situated in Mqabba, located on the second floor, three-bedroom furnished apartment, now available at the market.
The layout comprises of an open plan kitchen/dining/living with a front balcony, a laundry room, main bathroom and three-double bedrooms. Two of the bedrooms are connected to a balcony an the master bedroom includes an ensuite bathroom.
This property is being offered fully furnished and ready to move into.
Rooms and Features
Code
V024609
Locality
Mqabba
Property type
3+ bedroom apartment
Price
399,500 €
Locals
1
Bedrooms
3
Bathrooms
2
Sqm
120
Balconies
2
Energetic class
Not applicable
Property Conditions
Good
Photos • Floorplans • Video
Photos
Options
Print Property sheet
Send property sheet by mail
Schedule a visit
RealEstate Brokers
Zahra Gaynor
+356 7933 5643
+356 9998 6775
+356 9998 6779
gaynor@sensaramalta.com
Information request
Name *
Phone *
E-mail *
Request Details *
I authorize the processing of my personal data according Regolamento UE n. 679/2016 -
Privacy Policy
I authorize the processing of data for marketing purposes, promotional activities, commercial offers and market surveys.
Send
Share on
We also recommend
for Sale
Birzebbugia - 3 Bedroom Second Floor Apartment + Views On Plan
460,000 €
for Sale
Fgura - 3 Bedroom 1st Floor Finished Apartment On Plan
317,500 €
for Sale
Lija - 3 Bedroom Apartment + Private Roof + Opt Garage
538,000 €
Keep default settings X
Use of cookies
This site uses cookies. Our (own) cookies and those of our Partners (third party cookies) are used to offer you a unique experience with us. For this reason, together with our partners, we collect and process non-sensitive information (such as the identifier of your device or the pages you visit).
At any time you can delete, modify or verify the information you share in
Cookie preference
or in our
Cookie Policy
and
Privacy Policy
.
Necessary
Functional
Profiling
Analytics
Accept all
Decline all
Accept selected
Cookie preference