Toggle navigation
(+356) 2164 9500
(+356) 9998 6779
info@sensaramalta.com
Head Office - Sensara Malta
Triq Santa Marija, Safi
09.00 to 19.00 hrs
Monday to Saturday
Home
Properties
Sales
Rentals
Foreign
About us
Services
Contacts
Send your request
Previous
Next
335,000 €
CLICK HERE for DETAILED PHOTOS
Birkirkara - 1st Floor 3 Bedroom Apartment Finished + Optional Garage
3+ bedroom apartment for sale • Birkirkara
Set in a sought-after residential area, this brand-new development in Birkirkara just off Iklin which is currently under construction - consists of a ground floor maiosnette , 6 apartments and 2 penthouses .
All units are being sold finished excluding bathrooms and internal doors, while common parts will be delivered fully finished.
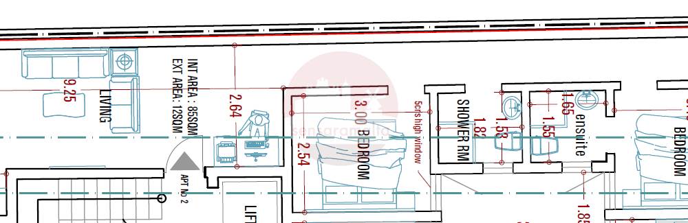
Each apartment enjoys a well-planned longish open-plan kitchen, living and dining area leading to front and back balconies, providing ample natural light throughout.
The layout includes 3 bedrooms, with the main bedroom featuring an ensuite , together with a main bathroom.
With a total internal area of approximately 85 sqm and an external area of 12 sqm, these apartments are ideal for both first-time buyers and investors looking for a smart, central property in Birkirkara, just off Iklin.
Project completion is targeted for end of May 2026.
Optional 2-car garages are available at €110,000.
Rooms and Features
Code
V024606
Locality
Birkirkara
Property type
3+ bedroom apartment
Price
335,000 €
Locals
1
Bedrooms
3
Bathrooms
3
Sqm
97
Balconies
1
Sqm balcon
12
Terraces
1
Floor
1
Energetic class
Not applicable
Property Conditions
New
Accessories:
Double Glazing
Photos • Floorplans • Video
Photos
Options
Print Property sheet
Send property sheet by mail
Schedule a visit
RealEstate Brokers
Schembri Maria Pawla
+356 7732 8183
+356 9998 6779
+356 9998 6775
pawla@sensaramalta.com
Information request
Name *
Phone *
E-mail *
Request Details *
I authorize the processing of my personal data according Regolamento UE n. 679/2016 -
Privacy Policy
I authorize the processing of data for marketing purposes, promotional activities, commercial offers and market surveys.
Send
Share on
We also recommend
for Sale
Pieta - 3 Bedroom 2nd Floor Fully Finished Apartment + Views On Plan
742,000 €
for Sale
Mosta - 3 Bedroom Apartment Finished - On Plan
499,000 €
for Sale
Attard - 3 Bedroom Fully Finished Apartment
461,000 €
Keep default settings X
Use of cookies
This site uses cookies. Our (own) cookies and those of our Partners (third party cookies) are used to offer you a unique experience with us. For this reason, together with our partners, we collect and process non-sensitive information (such as the identifier of your device or the pages you visit).
At any time you can delete, modify or verify the information you share in
Cookie preference
or in our
Cookie Policy
and
Privacy Policy
.
Necessary
Functional
Profiling
Analytics
Accept all
Decline all
Accept selected
Cookie preference