Toggle navigation
(+356) 2164 9500
(+356) 9998 6779
info@sensaramalta.com
Head Office - Sensara Malta
Triq Santa Marija, Safi
09.00 to 19.00 hrs
Monday to Saturday
Home
Properties
Sales
Rentals
Foreign
About us
Services
Contacts
Send your request
Previous
Next
410,000 €
CLICK HERE for DETAILED PHOTOS
Gzira - 1 Bedroom Finished Corner Duplex Penthouse + Pool
Penthouse for sale • Gzira
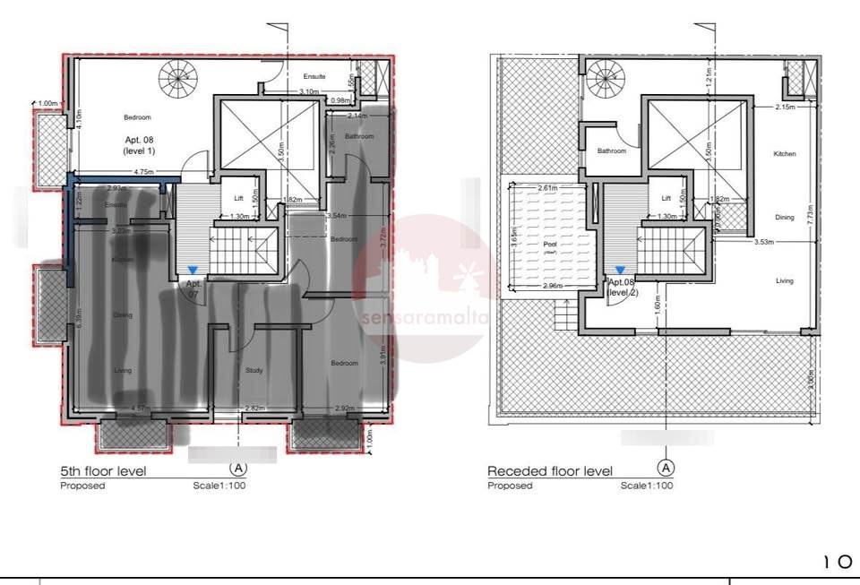
Located in Gzira on the fifth and sixth floor, one-bedroom finished penthouse.
The layout comprises of an open plan kitchen/dining/living with a massive corner terrace with pool on the sixth floor, a double bedroom with a front balcony and an ensuite bathroom on the fifth floor.
This property is being offered finished excluding bathrooms and internal doors.
Rooms and Features
Code
V024598
Locality
Gzira
Property type
Penthouse
Price
410,000 €
Locals
1
Bedrooms
1
Bathrooms
2
Sqm
150
Terraces
1
Energetic class
Not applicable
Property Conditions
Under Construction
Photos • Floorplans • Video
Photos
Options
Print Property sheet
Send property sheet by mail
Schedule a visit
RealEstate Brokers
Caruana Dylan
+356 9960 6829
+356 9998 6779
+356 2164 9500
dylan@sensaramalta.com
Information request
Name *
Phone *
E-mail *
Request Details *
I authorize the processing of my personal data according Regolamento UE n. 679/2016 -
Privacy Policy
I authorize the processing of data for marketing purposes, promotional activities, commercial offers and market surveys.
Send
Share on
We also recommend
for Sale
Gharb Gozo - 3 Bedroom Furnished TOP FLOOR APARTMENT
328,000 €
for Sale
Zebbug - 3 Bedroom Finished Penthouse + Airspace + Optional Garage
527,000 €
for Sale
Msida - 2 Bedroom Penthouse + Pool
620,000 €
Keep default settings X
Use of cookies
This site uses cookies. Our (own) cookies and those of our Partners (third party cookies) are used to offer you a unique experience with us. For this reason, together with our partners, we collect and process non-sensitive information (such as the identifier of your device or the pages you visit).
At any time you can delete, modify or verify the information you share in
Cookie preference
or in our
Cookie Policy
and
Privacy Policy
.
Necessary
Functional
Profiling
Analytics
Accept all
Decline all
Accept selected
Cookie preference