Toggle navigation
(+356) 2164 9500
(+356) 9998 6779
info@sensaramalta.com
Head Office - Sensara Malta
Triq Santa Marija, Safi
09.00 to 19.00 hrs
Monday to Saturday
Home
Properties
Sales
Rentals
Foreign
About us
Services
Contacts
Send your request
Previous
Next
318,000 €
CLICK HERE for DETAILED PHOTOS
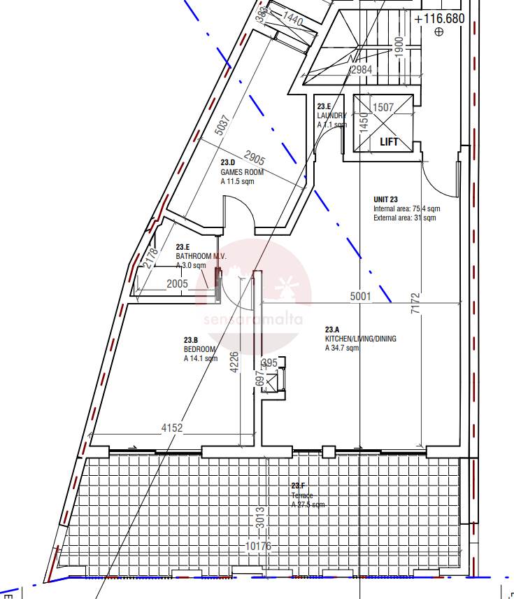
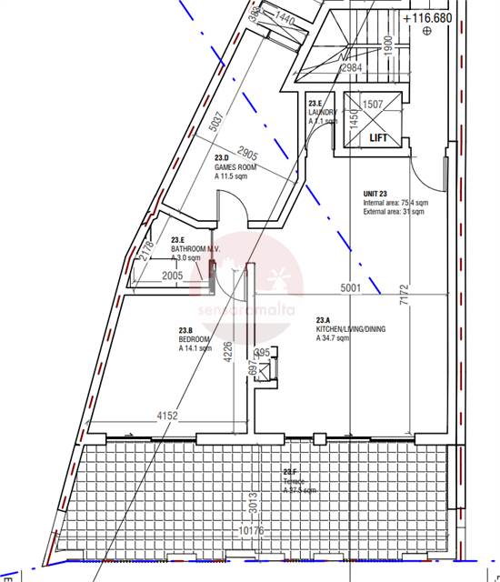
Msida - 6th Floor 2 Bedroom Finished Penthouse On Plan
Penthouse for sale • Msida
Located in Msida, sixth floor two-bedroom fully finished Penthouse, currently available on plan.
The layout consists of an open plan kitchen/dining/living with a front terrace, main bathroom, a laundry room and two bedrooms (main bedroom and a spare).
This property is being offered fully finished including the bathroom and internal doors and is estimate to be completed by 2027. An optional street level one car garage is available at an extra price of 75k.
Rooms and Features
Code
V024506
Locality
Msida
Property type
Penthouse
Price
318,000 €
Locals
1
Bedrooms
2
Bathrooms
1
Sqm
105
Terraces
1
Floor
6
Energetic class
Nondescript
Property Conditions
Next Realization
Photos • Floorplans • Video
Photos
Options
Print Property sheet
Send property sheet by mail
Schedule a visit
RealEstate Brokers
Hughes Jeffrey
+356 9980 0004
+356 9998 6779
+356 9998 6775
hughes@sensaramalta.com
Information request
Name *
Phone *
E-mail *
Request Details *
I authorize the processing of my personal data according Regolamento UE n. 679/2016 -
Privacy Policy
I authorize the processing of data for marketing purposes, promotional activities, commercial offers and market surveys.
Send
Share on
We also recommend
for Sale
Mellieha - 2 Bedroom Ready Built Duplex Penthouse + Views
399,000 €
for Sale
Fgura - 1 Bedroom Penthouse With Pool On Plan
286,000 €
for Sale
San Pawl il-Bahar - Duplex 2 Bedroom Finished Penthouse + Side Sea Views
358,500 €
Keep default settings X
Use of cookies
This site uses cookies. Our (own) cookies and those of our Partners (third party cookies) are used to offer you a unique experience with us. For this reason, together with our partners, we collect and process non-sensitive information (such as the identifier of your device or the pages you visit).
At any time you can delete, modify or verify the information you share in
Cookie preference
or in our
Cookie Policy
and
Privacy Policy
.
Necessary
Functional
Profiling
Analytics
Accept all
Decline all
Accept selected
Cookie preference