Toggle navigation
(+356) 2164 9500
(+356) 9998 6779
info@sensaramalta.com
Head Office - Sensara Malta
Triq Santa Marija, Safi
09.00 to 19.00 hrs
Monday to Saturday
Home
Properties
Sales
Rentals
Foreign
About us
Services
Contacts
Send your request
Previous
Next
243,000 €
CLICK HERE for DETAILED PHOTOS
Qormi - 2 bedroom Apartment in Shell form
2 bedroom apartment for sale • Qormi
FURTHER REDUCTION IN PRICE GUARANTEED WITH SENSARA MALTA CLIENTS.
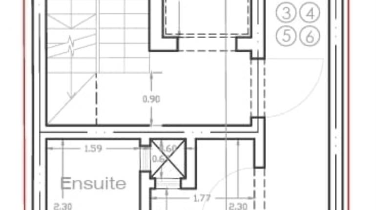
Located in Qormi, this 1 bedroom 1 study 4th floor apartment is currently available on plan, set to be sold in shell form with common parts ready finished and completed by Feb 2027.
The layout consists of an open plan kitchen/dining/living with a front terrace, a gym/study, a washroom, main bedroom, an ensuite and a walk-in.
Freehold
Rooms and Features
Code
V024453
Locality
Qormi
Property type
2 bedroom apartment
Price
243,000 €
Locals
1
Bedrooms
2
Sqm
66
Terraces
1
Floor
4
Energetic class
Not applicable
Photos • Floorplans • Video
Photos
Options
Print Property sheet
Send property sheet by mail
Schedule a visit
RealEstate Brokers
Aguis Lorna
+356 9961 6121
+356 9998 6779
+356 2164 9500
lorna@sensaramalta.com
Information request
Name *
Phone *
E-mail *
Request Details *
I authorize the processing of my personal data according Regolamento UE n. 679/2016 -
Privacy Policy
I authorize the processing of data for marketing purposes, promotional activities, commercial offers and market surveys.
Send
Share on
We also recommend
for Sale
Qormi - 2 Bedroom Apartment On Plan
285,000 €
for Sale
Swieqi - 3rd Floor Fully Finished 2 Bedroom Apartment + Balconies + Optional Garage
420,000 €
for Sale
Fontana Gozo - 2 Bedroom Penthouse + Views + Airspace
328,000 €
Keep default settings X
Use of cookies
This site uses cookies. Our (own) cookies and those of our Partners (third party cookies) are used to offer you a unique experience with us. For this reason, together with our partners, we collect and process non-sensitive information (such as the identifier of your device or the pages you visit).
At any time you can delete, modify or verify the information you share in
Cookie preference
or in our
Cookie Policy
and
Privacy Policy
.
Necessary
Functional
Profiling
Analytics
Accept all
Decline all
Accept selected
Cookie preference