Toggle navigation
(+356) 2164 9500
(+356) 9998 6779
info@sensaramalta.com
Head Office - Sensara Malta
Triq Santa Marija, Safi
09.00 to 19.00 hrs
Monday to Saturday
Home
Properties
Sales
Rentals
Foreign
About us
Services
Contacts
Send your request
Previous
Next
245,000 €
CLICK HERE for DETAILED PHOTOS
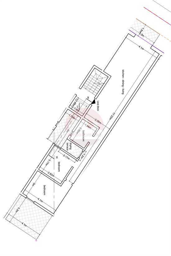
Qormi - 2 Bedroom Apartment On Plan
2 bedroom apartment for sale • Qormi
In Qormi comes this 2-bedroom 2-bathroom third-floor apartment still on plan.
This apartment will be offered in shell form.
optional garages starting from 40K
Completion expected by mid 2027
Rooms and Features
Code
V024418
Locality
Qormi
Property type
2 bedroom apartment
Price
245,000 €
Locals
1
Bedrooms
2
Bathrooms
1
Sqm
91
Energetic class
Nondescript
Photos • Floorplans • Video
Photos
Options
Print Property sheet
Send property sheet by mail
Schedule a visit
RealEstate Brokers
Caruana Dylan
+356 9960 6829
+356 9998 6779
+356 2164 9500
dylan@sensaramalta.com
Information request
Name *
Phone *
E-mail *
Request Details *
I authorize the processing of my personal data according Regolamento UE n. 679/2016 -
Privacy Policy
I authorize the processing of data for marketing purposes, promotional activities, commercial offers and market surveys.
Send
Share on
We also recommend
for Sale
St Paul's Bay - 2 Bedroom Highly Finished Apt
358,500 €
for Sale
Qawra - 2 Bedroom Fully Finished 6th Floor Apartment Ready Built
330,000 €
for Sale
Safi - 2 Bedroom Apartment + Views
277,000 €
Keep default settings X
Use of cookies
This site uses cookies. Our (own) cookies and those of our Partners (third party cookies) are used to offer you a unique experience with us. For this reason, together with our partners, we collect and process non-sensitive information (such as the identifier of your device or the pages you visit).
At any time you can delete, modify or verify the information you share in
Cookie preference
or in our
Cookie Policy
and
Privacy Policy
.
Necessary
Functional
Profiling
Analytics
Accept all
Decline all
Accept selected
Cookie preference