Toggle navigation
(+356) 2164 9500
(+356) 9998 6779
info@sensaramalta.com
Head Office - Sensara Malta
Triq Santa Marija, Safi
09.00 to 19.00 hrs
Monday to Saturday
Home
Properties
Sales
Rentals
Foreign
About us
Services
Contacts
Send your request
Previous
Next
225,000 €
CLICK HERE for DETAILED PHOTOS
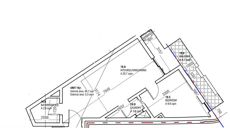
Paola - One Bedroom Apartment + Longish Balcony - On Plan - Shell Form
1 bedroom apartment for sale • Paola
New Project of Apartments - A Second Floor One Bedroom Corner Apartment enjoys a corner longish Balcony. Being offered at pre-construction price, to be sold in Shell Form and estimated to be ready apprx by March 2027.
Comprises a Kitchen/Living/Dining with a corner longish balcony, main Bathroom and Double Bedroom.
Freehold
Rooms and Features
Code
V024371
Locality
Paola
Property type
1 bedroom apartment
Price
225,000 €
Locals
1
Sqm
49
Energetic class
Nondescript
Photos • Floorplans • Video
Photos
Options
Print Property sheet
Send property sheet by mail
Schedule a visit
RealEstate Brokers
Jenkins Rita
+356 7712 7772
+356 9998 6779
+356 9998 6775
rita@sensaramalta.com
Information request
Name *
Phone *
E-mail *
Request Details *
I authorize the processing of my personal data according Regolamento UE n. 679/2016 -
Privacy Policy
I authorize the processing of data for marketing purposes, promotional activities, commercial offers and market surveys.
Send
Share on
We also recommend
for Sale
Pieta - 1 Bedroom 1st Floor Fully Finished Apartment On Plan
250,000 €
for Sale
Birkirkara - 2nd Floor 1 Double Bedroom Finished Apartment
232,500 €
for Sale
Marsa - 1 Bedroom 1st Floor Apartment On Plan
198,000 €
Keep default settings X
Use of cookies
This site uses cookies. Our (own) cookies and those of our Partners (third party cookies) are used to offer you a unique experience with us. For this reason, together with our partners, we collect and process non-sensitive information (such as the identifier of your device or the pages you visit).
At any time you can delete, modify or verify the information you share in
Cookie preference
or in our
Cookie Policy
and
Privacy Policy
.
Necessary
Functional
Profiling
Analytics
Accept all
Decline all
Accept selected
Cookie preference