Toggle navigation
(+356) 2164 9500
(+356) 9998 6779
info@sensaramalta.com
Head Office - Sensara Malta
Triq Santa Marija, Safi
09.00 to 19.00 hrs
Monday to Saturday
Home
Properties
Sales
Rentals
Foreign
About us
Services
Contacts
Send your request
Previous
Next
354,000 €
CLICK HERE for DETAILED PHOTOS
Marsascala - 3 Bedroom Apartment - Ready Built - Finished
3+ bedroom apartment for sale • Marsascala
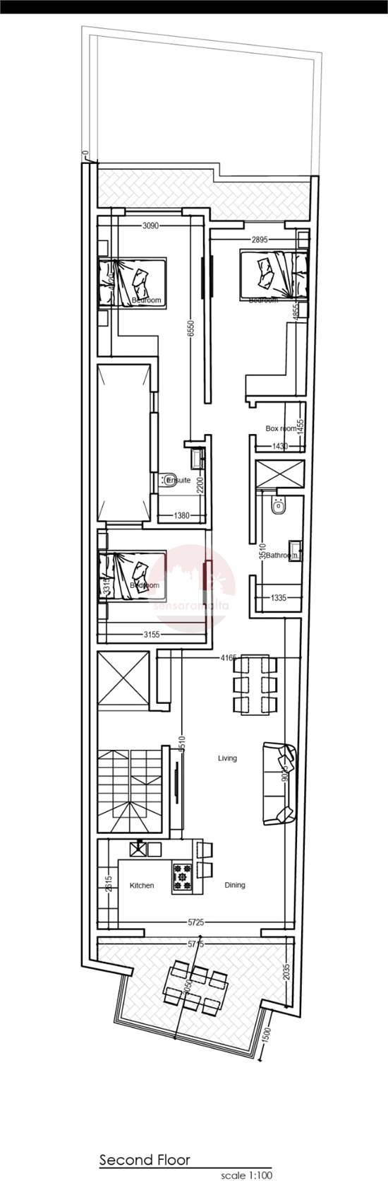
Set on the second floor, served with a lift, this three bedroom Apartment located in Marsascala, St Thomas area. Property is ready built and is being offered Finished excluding bathrooms and internal doors.
Property comprises of an open plan Kitchen/Living/Dining overlooking a spacious Terrace, a corridor leads you to three Double Bedrooms of which the main has its own en-suite. Further more a main Bathroom, a Box room and a back veranda.
Freehold.
Rooms and Features
Code
V024314
Locality
Marsascala
Property type
3+ bedroom apartment
Price
354,000 €
Locals
1
Bedrooms
3
Bathrooms
2
Sqm
120
Balconies
2
Energetic class
Nondescript
Photos • Floorplans • Video
Photos
Options
Print Property sheet
Send property sheet by mail
Schedule a visit
RealEstate Brokers
Jenkins Rita
+356 7712 7772
+356 9998 6779
+356 9998 6775
rita@sensaramalta.com
Information request
Name *
Phone *
E-mail *
Request Details *
I authorize the processing of my personal data according Regolamento UE n. 679/2016 -
Privacy Policy
I authorize the processing of data for marketing purposes, promotional activities, commercial offers and market surveys.
Send
Share on
We also recommend
for Sale
Burmarrad - 3 Bedroom Apartment
330,000 €
for Sale
Gozo Kercem: 3 bedroom FINISHED apartment /185sqm
280,000 €
for Sale
Qormi - Larger than usual 3 bedroom Corner Apartment Ready Finished
440,000 €
Keep default settings X
Use of cookies
This site uses cookies. Our (own) cookies and those of our Partners (third party cookies) are used to offer you a unique experience with us. For this reason, together with our partners, we collect and process non-sensitive information (such as the identifier of your device or the pages you visit).
At any time you can delete, modify or verify the information you share in
Cookie preference
or in our
Cookie Policy
and
Privacy Policy
.
Necessary
Functional
Profiling
Analytics
Accept all
Decline all
Accept selected
Cookie preference