Toggle navigation
(+356) 2164 9500
(+356) 9998 6779
info@sensaramalta.com
Head Office - Sensara Malta
Triq Santa Marija, Safi
09.00 to 19.00 hrs
Monday to Saturday
Home
Properties
Sales
Rentals
Foreign
About us
Services
Contacts
Send your request
Previous
Next
348,000 €
CLICK HERE for DETAILED PHOTOS
Zabbar - 2 Bedroom Penthouse Finished + Airspace
Penthouse for sale • Zabbar
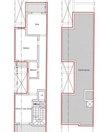
Located on the fourth floor, 2 bedrooms penthouse finished with airspace already built. One unit per floor, served with lift.
The layout comprises an open plan K/L/D overlooking front terrace, main bathroom, storage room, mainn bedroom with en-suite, another bedroom and back balcony.
Finished excluding bathrooms & doors.
Freehold
Rooms and Features
Code
V024284
Locality
Zabbar
Property type
Penthouse
Price
348,000 €
Locals
1
Bedrooms
2
Bathrooms
2
Sqm
117
Balconies
1
Terraces
1
Energetic class
Nondescript
Property Conditions
New
Accessories:
Elevator, Double Glazing
Photos • Floorplans • Video
Photos
Options
Print Property sheet
Send property sheet by mail
Schedule a visit
RealEstate Brokers
Grima Keith
+356 7902 0587
+356 9998 6775
+356 9998 6779
keith@sensaramalta.com
Information request
Name *
Phone *
E-mail *
Request Details *
I authorize the processing of my personal data according Regolamento UE n. 679/2016 -
Privacy Policy
I authorize the processing of data for marketing purposes, promotional activities, commercial offers and market surveys.
Send
Share on
We also recommend
for Sale
Zebbug - 2 Bed Fully Finished Penthouse On Plan
470,000 €
for Sale
Fgura - 1 Bedroom + Study Penthouse + Airspace - On Plan - Shell Form
308,000 €
for Sale
Xaghra Gozo - 2 Bedroom Shell Penthouse + Airspace
233,000 €
Keep default settings X
Use of cookies
This site uses cookies. Our (own) cookies and those of our Partners (third party cookies) are used to offer you a unique experience with us. For this reason, together with our partners, we collect and process non-sensitive information (such as the identifier of your device or the pages you visit).
At any time you can delete, modify or verify the information you share in
Cookie preference
or in our
Cookie Policy
and
Privacy Policy
.
Necessary
Functional
Profiling
Analytics
Accept all
Decline all
Accept selected
Cookie preference