Toggle navigation
(+356) 2164 9500
(+356) 9998 6779
info@sensaramalta.com
Head Office - Sensara Malta
Triq Santa Marija, Safi
09.00 to 19.00 hrs
Monday to Saturday
Home
Properties
Sales
Rentals
Foreign
About us
Services
Contacts
Send your request
Previous
Next
710,000 €
CLICK HERE for DETAILED PHOTOS
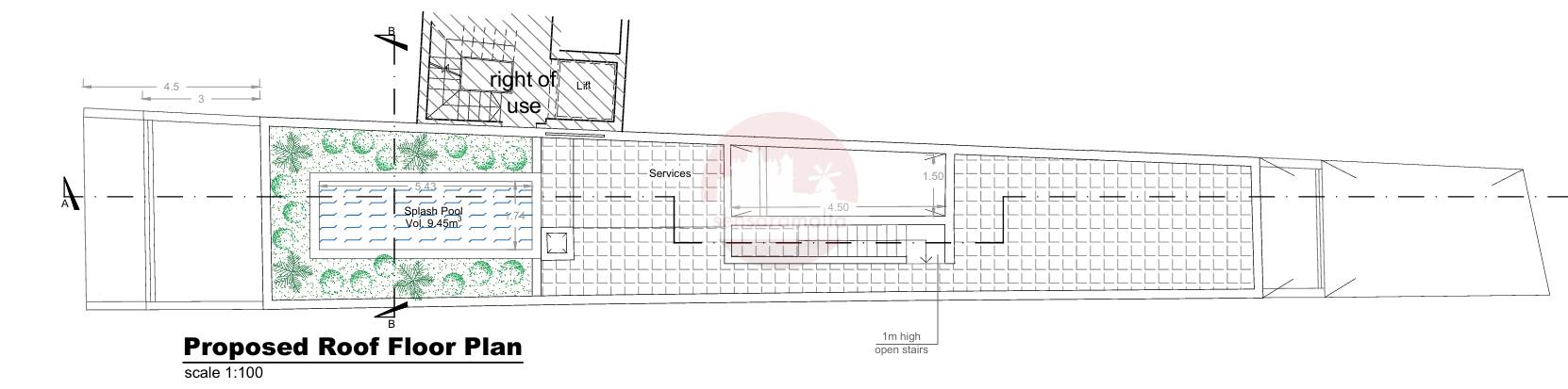
St Paul’s Bay – 3 Bedroom Ready-Built Penthouse + Pool + Views + Airspace
Penthouse for sale • San Pawl il-Bahar
Situated on the sixth floor, this three-bedroom penthouse is located in a sought-after area of St Paul’s Bay and enjoys beautiful sea views.
The layout comprises a bright open-plan kitchen, dining, and living area leading onto a front terrace, a main bathroom, and three bedrooms, including two double bedrooms and a spare room. The master bedroom also benefits from a private balcony.
This penthouse is further complemented by its own full roof and airspace, complete with a private pool—ideal for outdoor entertaining and relaxation.
The property is ready-built and is being offered finished, excluding bathrooms and internal doors.
Rooms and Features
Code
V024249
Locality
San Pawl il-Bahar
Property type
Penthouse
Price
710,000 €
Locals
1
Bedrooms
3
Bathrooms
1
Sqm
103
Balconies
1
Terraces
1
Floor
6
Energetic class
Nondescript
Property Conditions
Perfect Conditions
Accessories:
Double Glazing, Veranda
Photos • Floorplans • Video
Photos
Options
Print Property sheet
Send property sheet by mail
Schedule a visit
RealEstate Brokers
Schembri Maria Pawla
+356 7732 8183
+356 9998 6779
+356 9998 6775
pawla@sensaramalta.com
Information request
Name *
Phone *
E-mail *
Request Details *
I authorize the processing of my personal data according Regolamento UE n. 679/2016 -
Privacy Policy
I authorize the processing of data for marketing purposes, promotional activities, commercial offers and market surveys.
Send
Share on
We also recommend
for Sale
Qrendi - 3 Bedroom Finished Penthouse + Bathrooms
491,500 €
for Sale
Fgura - 2 Bedroom Finished Penthouse + Corner Terrace On Plan
338,000 €
for Sale
Msida - 6th Floor 1 Bedroom Finished Penthouse On Plan
308,000 €
Keep default settings X
Use of cookies
This site uses cookies. Our (own) cookies and those of our Partners (third party cookies) are used to offer you a unique experience with us. For this reason, together with our partners, we collect and process non-sensitive information (such as the identifier of your device or the pages you visit).
At any time you can delete, modify or verify the information you share in
Cookie preference
or in our
Cookie Policy
and
Privacy Policy
.
Necessary
Functional
Profiling
Analytics
Accept all
Decline all
Accept selected
Cookie preference