Toggle navigation
(+356) 2164 9500
(+356) 9998 6779
info@sensaramalta.com
Head Office - Sensara Malta
Triq Santa Marija, Safi
09.00 to 19.00 hrs
Monday to Saturday
Home
Properties
Sales
Rentals
Foreign
About us
Services
Contacts
Send your request
Previous
Next
255,000 €
CLICK HERE for DETAILED PHOTOS
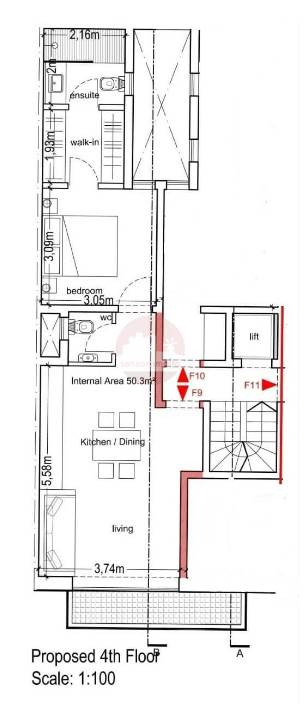
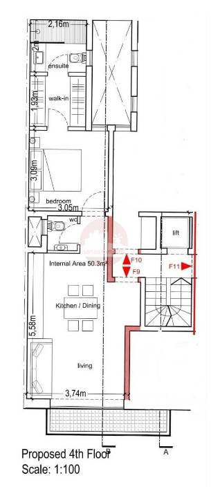
San Gwann - 1 Bedroom 2nd Floor Finished Apartment Under Construction
1 bedroom apartment for sale • San Gwann
Located on the second floor in San Gwann, one-bedroom finished apartment, currently under construction.
The layout comprises of an open plan kitchen/dining/living with a front terrace, main bathroom and a double bedroom that is complemented by a walk-in-wardrobe, an ensuite bathroom and a balcony. This property is served with lift and Freehold.
It is being offered finished excluding bathrooms and internal doors and is estimate to be completed by 2027.
Rooms and Features
Code
V024163
Locality
San Gwann
Property type
1 bedroom apartment
Price
255,000 €
Locals
1
Bedrooms
1
Bathrooms
2
Sqm
50
Balconies
1
Terraces
1
Floor
2
Energetic class
Nondescript
Photos • Floorplans • Video
Photos
Options
Print Property sheet
Send property sheet by mail
Schedule a visit
RealEstate Brokers
Zahra Jason
+356 7748 1209
+356 9998 6779
+356 2164 9500
jason@sensaramalta.com
Information request
Name *
Phone *
E-mail *
Request Details *
I authorize the processing of my personal data according Regolamento UE n. 679/2016 -
Privacy Policy
I authorize the processing of data for marketing purposes, promotional activities, commercial offers and market surveys.
Send
Share on
We also recommend
for Sale
Santa Venera - 1 Bedroom 3rd Floor Apartment On Plan
236,000 €
for Sale
Birkirkara - 2nd Floor 1 Double Bedroom Finished Apartment
232,500 €
for Sale
San Gwann - 1 Bedroom 4th Floor Apartment On Plan
252,000 €
Keep default settings X
Use of cookies
This site uses cookies. Our (own) cookies and those of our Partners (third party cookies) are used to offer you a unique experience with us. For this reason, together with our partners, we collect and process non-sensitive information (such as the identifier of your device or the pages you visit).
At any time you can delete, modify or verify the information you share in
Cookie preference
or in our
Cookie Policy
and
Privacy Policy
.
Necessary
Functional
Profiling
Analytics
Accept all
Decline all
Accept selected
Cookie preference