Toggle navigation
(+356) 2164 9500
(+356) 9998 6779
info@sensaramalta.com
Head Office - Sensara Malta
Triq Santa Marija, Safi
09.00 to 19.00 hrs
Monday to Saturday
Home
Properties
Sales
Rentals
Foreign
About us
Services
Contacts
Send your request
Previous
Next
435,000 €
CLICK HERE for DETAILED PHOTOS
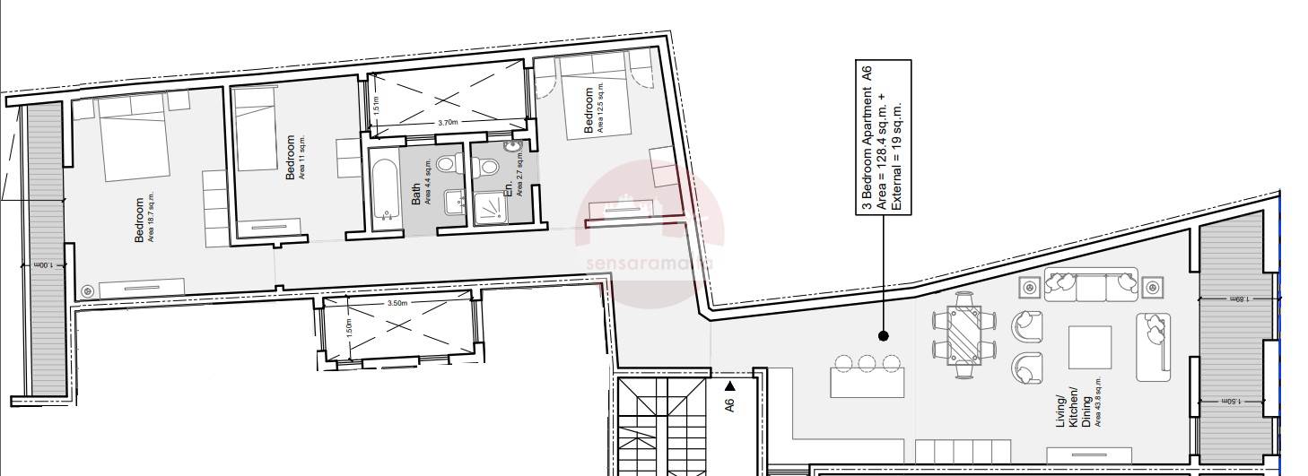
Blazan - 3 Bedroom 2nd Floor Finished Apartment, Ready Built
3+ bedroom apartment for sale • Balzan
Located on the second floor in Balzan, three-bedroom finished and ready built apartment.
The layout comprises of an open plan kitchen/dining/living followed by a corridor, main bathroom, two double-bedrooms and a spare. The master bedroom includes an ensuite and the second bedroom is connected to a balcony.
This apartment is ready built and is being offered finished excluding bathrooms and internal doors.
Rooms and Features
Code
V024115
Locality
Balzan
Property type
3+ bedroom apartment
Price
435,000 €
Locals
1
Bedrooms
3
Bathrooms
2
Sqm
147
Balconies
1
Terraces
1
Floor
2
Energetic class
Nondescript
Photos • Floorplans • Video
Photos
Options
Print Property sheet
Send property sheet by mail
Schedule a visit
RealEstate Brokers
Zahra Gaynor
+356 7933 5643
+356 9998 6775
+356 9998 6779
gaynor@sensaramalta.com
Information request
Name *
Phone *
E-mail *
Request Details *
I authorize the processing of my personal data according Regolamento UE n. 679/2016 -
Privacy Policy
I authorize the processing of data for marketing purposes, promotional activities, commercial offers and market surveys.
Send
Share on
We also recommend
for Sale
Mosta - 210sqm 2nd Floor 3 Double Bedroom Finished Apartment + Terrace
535,000 €
for Sale
Sliema - 3 Bedroom Furnished Apartment + Views
925,000 €
for Sale
Birkirkara - 3rd Floor 3 Bedroom Apartment
307,500 €
Keep default settings X
Use of cookies
This site uses cookies. Our (own) cookies and those of our Partners (third party cookies) are used to offer you a unique experience with us. For this reason, together with our partners, we collect and process non-sensitive information (such as the identifier of your device or the pages you visit).
At any time you can delete, modify or verify the information you share in
Cookie preference
or in our
Cookie Policy
and
Privacy Policy
.
Necessary
Functional
Profiling
Analytics
Accept all
Decline all
Accept selected
Cookie preference