Toggle navigation
(+356) 2164 9500
(+356) 9998 6779
info@sensaramalta.com
Head Office - Sensara Malta
Triq Santa Marija, Safi
09.00 to 19.00 hrs
Monday to Saturday
Home
Properties
Sales
Rentals
Foreign
About us
Services
Contacts
Send your request
Previous
Next
497,000 €
CLICK HERE for DETAILED PHOTOS
B'Kara- Unconverted Town House + Roof +UCA
Town House for sale • Birkirkara
Within a quiet residential and urban conservation area comes this opportunity to acquire an unconverted townhouse boasting lovely stone features such as xorok (roof slabs), kileb (corbelling), and hitan tad-dobblu (double walls), and so much more.
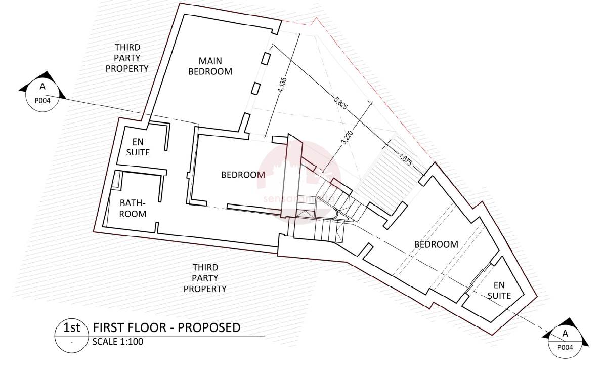
With proposed plans to convert this property into a 3-bedroom family home, this property comprises an entrance leading to several rooms and a courtyard on the ground floor. A stone staircase leads to the first floor, leading to other rooms, its full roof, and airspace. Freehold
Rooms and Features
Code
V023981
Locality
Birkirkara
Property type
Town House
Price
497,000 €
Locals
1
Sqm
113
Energetic class
Nondescript
Property Conditions
To Be Renovated
Photos • Floorplans • Video
Photos
Options
Print Property sheet
Send property sheet by mail
Schedule a visit
RealEstate Brokers
Hughes Jeffrey
+356 9980 0004
+356 9998 6779
+356 9998 6775
hughes@sensaramalta.com
Information request
Name *
Phone *
E-mail *
Request Details *
I authorize the processing of my personal data according Regolamento UE n. 679/2016 -
Privacy Policy
I authorize the processing of data for marketing purposes, promotional activities, commercial offers and market surveys.
Send
Share on
We also recommend
for Sale
Naxxar - Converted 3 Bedroom Townhouse + Optional Garage
697,000 €
for Sale
Zejtun - New 3 Bedroom Townhouse + Garage + roof Shell Form
555,000 €
for Sale
Bidnija - Semi Detached Townhouse 577 sqm
1,660,000 €
Keep default settings X
Use of cookies
This site uses cookies. Our (own) cookies and those of our Partners (third party cookies) are used to offer you a unique experience with us. For this reason, together with our partners, we collect and process non-sensitive information (such as the identifier of your device or the pages you visit).
At any time you can delete, modify or verify the information you share in
Cookie preference
or in our
Cookie Policy
and
Privacy Policy
.
Necessary
Functional
Profiling
Analytics
Accept all
Decline all
Accept selected
Cookie preference