Toggle navigation
(+356) 2164 9500
(+356) 9998 6779
info@sensaramalta.com
Head Office - Sensara Malta
Triq Santa Marija, Safi
09.00 to 19.00 hrs
Monday to Saturday
Home
Properties
Sales
Rentals
Foreign
About us
Services
Contacts
Send your request
Previous
Next
439,000 €
CLICK HERE for DETAILED PHOTOS
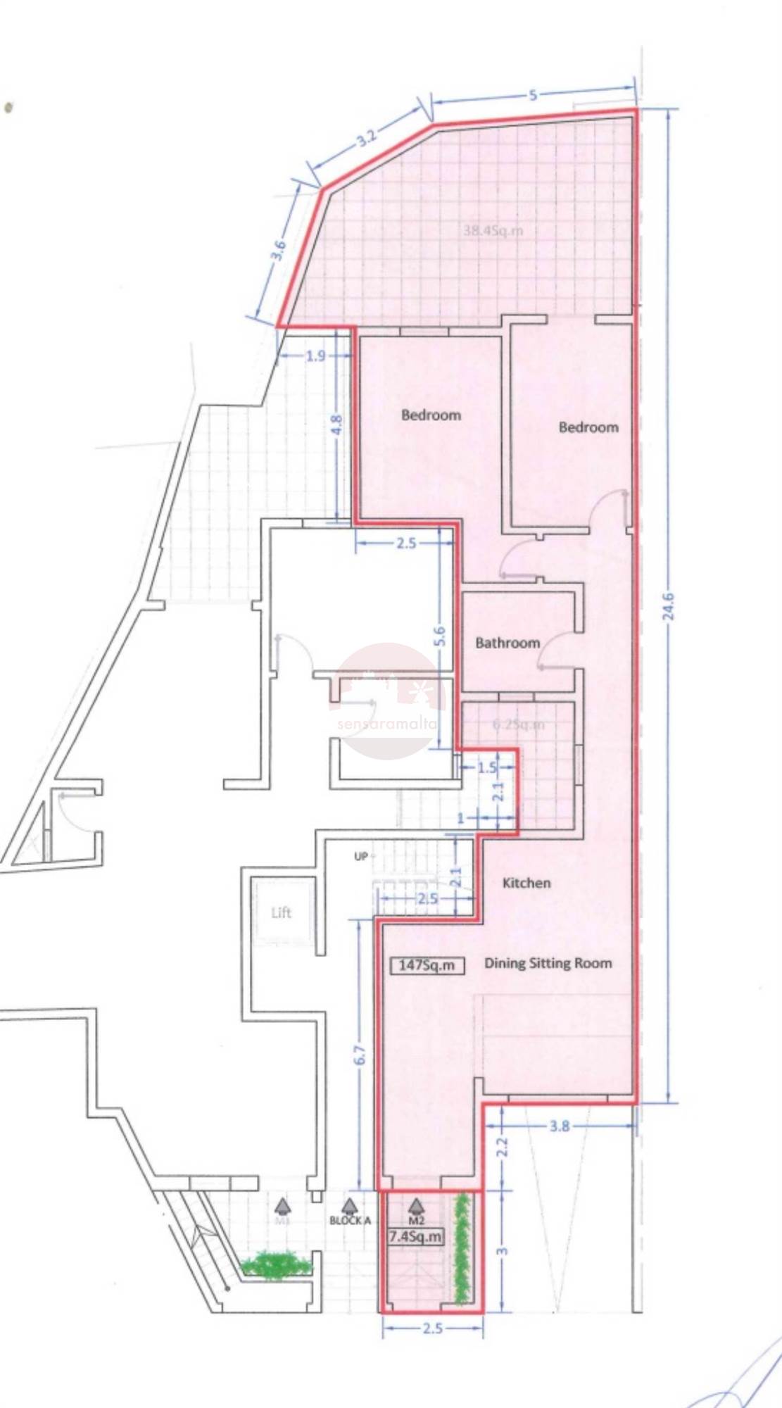
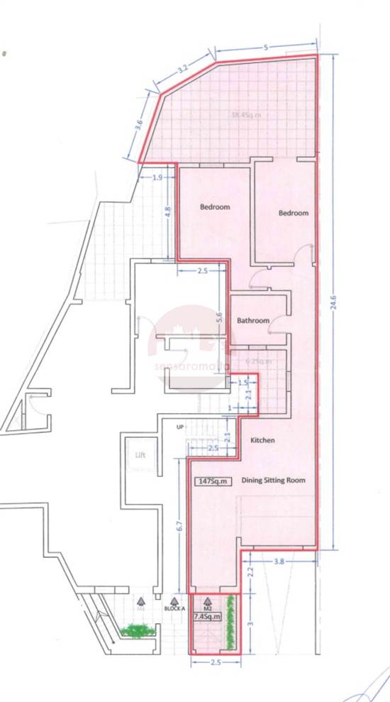
Swatar - 2 Bedroom Ground Floor Maisonette
Maisonette for sale • Swatar
In Swatar comes an elevated ground floor, two bedroom maisonette being offered fully furnished and ready to move into.
Upon entering one finds a kitchen/living/dining, internal yard, bathroom, two double bedrooms and a back yard.
Freehold
Rooms and Features
Code
V023743
Locality
Swatar
Property type
Maisonette
Price
439,000 €
Locals
1
Bedrooms
2
Bathrooms
1
Sqm
154
Terraces
1
Energetic class
Not applicable
Photos • Floorplans • Video
Photos
Options
Print Property sheet
Send property sheet by mail
Schedule a visit
RealEstate Brokers
Micallef Grimaud Emmanuel
+356 9990 6202
+356 9998 6779
+356 9998 6775
info@sensaramalta.com
Information request
Name *
Phone *
E-mail *
Request Details *
I authorize the processing of my personal data according Regolamento UE n. 679/2016 -
Privacy Policy
I authorize the processing of data for marketing purposes, promotional activities, commercial offers and market surveys.
Send
Share on
We also recommend
for Sale
Zejtun - Circa 165sqm 3 Bedroom Elevated Ground Floor Finished Maisonette + Large Back Yard
420,000 €
for Sale
Marsaxlokk - 160sqm Solitary 3 Bedroom Maisonette + Full Roof + Airspace
871,000 €
for Sale
Ghaxaq - 3 Bedroom Furnished GF Maisonette
369,000 €
Keep default settings X
Use of cookies
This site uses cookies. Our (own) cookies and those of our Partners (third party cookies) are used to offer you a unique experience with us. For this reason, together with our partners, we collect and process non-sensitive information (such as the identifier of your device or the pages you visit).
At any time you can delete, modify or verify the information you share in
Cookie preference
or in our
Cookie Policy
and
Privacy Policy
.
Necessary
Functional
Profiling
Analytics
Accept all
Decline all
Accept selected
Cookie preference