Toggle navigation
(+356) 2164 9500
(+356) 9998 6779
info@sensaramalta.com
Head Office - Sensara Malta
Triq Santa Marija, Safi
09.00 to 19.00 hrs
Monday to Saturday
Home
Properties
Sales
Rentals
Foreign
About us
Services
Contacts
Send your request
Previous
Next
675,000 €
CLICK HERE for DETAILED PHOTOS
St Julian's - 3 Bedroom Finished 7th Floor Apartment On Plan
3+ bedroom apartment for sale • San Giljan
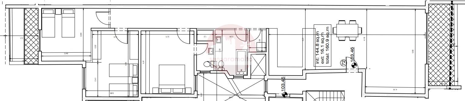
Located on the seventh floor, three-bedroom finished apartment, currently available on plan in St Julian's.
Consists of an open plan kitchen/dining/living with a front balcony, main bathroom and three-double bedrooms. The master bedroom includes an ensuite bathroom and the other bedroom includes a private balcony.
This apartment is still on plan and is estimate to be completed by 2027, it is being offered finished excluding bathrooms and internal doors.
Rooms and Features
Code
V023683
Locality
San Giljan
Property type
3+ bedroom apartment
Price
675,000 €
Locals
1
Bedrooms
3
Bathrooms
2
Sqm
160
Balconies
2
Floor
7
Energetic class
Nondescript
Photos • Floorplans • Video
Photos
Options
Print Property sheet
Send property sheet by mail
Schedule a visit
RealEstate Brokers
Zahra Gaynor
+356 7933 5643
+356 9998 6775
+356 9998 6779
gaynor@sensaramalta.com
Information request
Name *
Phone *
E-mail *
Request Details *
I authorize the processing of my personal data according Regolamento UE n. 679/2016 -
Privacy Policy
I authorize the processing of data for marketing purposes, promotional activities, commercial offers and market surveys.
Send
Share on
We also recommend
for Sale
Zejtun - 1st Floor 2 Bedroom + Study Apartment Shell Form
260,000 €
for Sale
Zejtun - 3rd Floor 2 Bedroom + Study Apartment Shell Form
280,000 €
for Sale
Zebbug - 3 Bedroom Fully Finished Apartment + Balcony + Optional Garages
405,000 €
Keep default settings X
Use of cookies
This site uses cookies. Our (own) cookies and those of our Partners (third party cookies) are used to offer you a unique experience with us. For this reason, together with our partners, we collect and process non-sensitive information (such as the identifier of your device or the pages you visit).
At any time you can delete, modify or verify the information you share in
Cookie preference
or in our
Cookie Policy
and
Privacy Policy
.
Necessary
Functional
Profiling
Analytics
Accept all
Decline all
Accept selected
Cookie preference