Toggle navigation
(+356) 2164 9500
(+356) 9998 6779
info@sensaramalta.com
Head Office - Sensara Malta
Triq Santa Marija, Safi
09.00 to 19.00 hrs
Monday to Saturday
Home
Properties
Sales
Rentals
Foreign
About us
Services
Contacts
Send your request
Previous
Next
385,000 €
CLICK HERE for DETAILED PHOTOS
Paola - 2 Bedroom Fully Finished Penthouse
Penthouse for sale • Paola
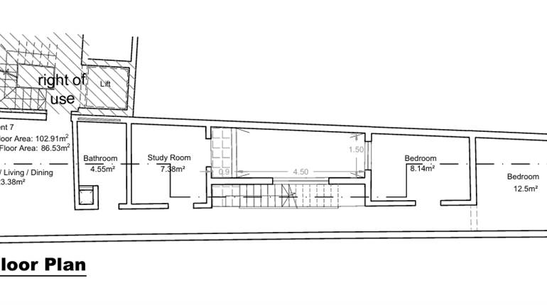
Located on the fourth floor, two-bedroom fully finished Penthouse including kitchen and bathrooms.
This penthouse consists of an open plan kitchen/dining/living, two double bedrooms with the master including an ensuite bathroom, two terraces, main bathroom and full roof and airspace.
This penthouse is being offered fully finished including bathrooms and bathrooms accessories, new fitted kitchen and ac units.
Optional car spaces are available at an extra price starting from 27k.
Rooms and Features
Code
V023662
Locality
Paola
Property type
Penthouse
Price
385,000 €
Locals
1
Bedrooms
2
Bathrooms
2
Sqm
126
Terraces
2
Floor
4
Energetic class
Nondescript
Photos • Floorplans • Video
Photos
Options
Print Property sheet
Send property sheet by mail
Schedule a visit
RealEstate Brokers
Zahra Gaynor
+356 7933 5643
+356 9998 6775
+356 9998 6779
gaynor@sensaramalta.com
Information request
Name *
Phone *
E-mail *
Request Details *
I authorize the processing of my personal data according Regolamento UE n. 679/2016 -
Privacy Policy
I authorize the processing of data for marketing purposes, promotional activities, commercial offers and market surveys.
Send
Share on
We also recommend
for Sale
St Paul's Bay - 3 Bedroom 6th Floor Ready Built Finished Apartment
665,000 €
for Sale
Paola - 3 Bedroom Penthouse with Roof + Airspace - Ready Built Shell Form
335,000 €
for Sale
Rabat - 3 Bedroom Finished Luxurious Penthouse + Pool + Terrace + Views
3,200,000 €
Keep default settings X
Use of cookies
This site uses cookies. Our (own) cookies and those of our Partners (third party cookies) are used to offer you a unique experience with us. For this reason, together with our partners, we collect and process non-sensitive information (such as the identifier of your device or the pages you visit).
At any time you can delete, modify or verify the information you share in
Cookie preference
or in our
Cookie Policy
and
Privacy Policy
.
Necessary
Functional
Profiling
Analytics
Accept all
Decline all
Accept selected
Cookie preference