Toggle navigation
(+356) 2164 9500
(+356) 9998 6779
info@sensaramalta.com
Head Office - Sensara Malta
Triq Santa Marija, Safi
09.00 to 19.00 hrs
Monday to Saturday
Home
Properties
Sales
Rentals
Foreign
About us
Services
Contacts
Send your request
Previous
Next
371,000 €
CLICK HERE for DETAILED PHOTOS
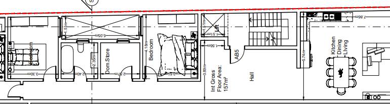
Xaghra - 3/4/5 Bedroom Terraced Houses
3+ bedroom apartment for sale • Xaghra Gozo
Set in a UCA area, is this exclusive hamlet featuring a limited collection of spacious three, four, and five bedroom houses of character, each thoughtfully created to blend traditional Gozitan charm with modern sophistication.
All homes are being offered in shell form and are currently on plan, making it the perfect opportunity to secure a truly unique residence in a sought-after location.
Rooms and Features
Code
V023644
Locality
Xaghra Gozo
Property type
3+ bedroom apartment
Price
371,000 €
Locals
1
Energetic class
Not applicable
Photos • Floorplans • Video
Photos
Options
Print Property sheet
Send property sheet by mail
Schedule a visit
RealEstate Brokers
Xiberras Joanie
+356 9985 2678
+356 9998 6779
+356 9998 6775
joanie.gozo@sensaramalta.com
Information request
Name *
Phone *
E-mail *
Request Details *
I authorize the processing of my personal data according Regolamento UE n. 679/2016 -
Privacy Policy
I authorize the processing of data for marketing purposes, promotional activities, commercial offers and market surveys.
Send
Share on
We also recommend
for Sale
Marsalforn Gozo - 3 Bedroom Furnished Apartment
260,000 €
for Sale
Mosta - Already Built 3 Bedroom Finished Apartment + Terrace+ Balcony + Optional Garages
405,000 €
for Sale
Fgura - 1st Floor 3 Bedroom Finished Apartment
285,000 €
Keep default settings X
Use of cookies
This site uses cookies. Our (own) cookies and those of our Partners (third party cookies) are used to offer you a unique experience with us. For this reason, together with our partners, we collect and process non-sensitive information (such as the identifier of your device or the pages you visit).
At any time you can delete, modify or verify the information you share in
Cookie preference
or in our
Cookie Policy
and
Privacy Policy
.
Necessary
Functional
Profiling
Analytics
Accept all
Decline all
Accept selected
Cookie preference