Toggle navigation
(+356) 2164 9500
(+356) 9998 6779
info@sensaramalta.com
Head Office - Sensara Malta
Triq Santa Marija, Safi
09.00 to 19.00 hrs
Monday to Saturday
Home
Properties
Sales
Rentals
Foreign
About us
Services
Contacts
Send your request
Previous
Next
630,000 €
CLICK HERE for DETAILED PHOTOS
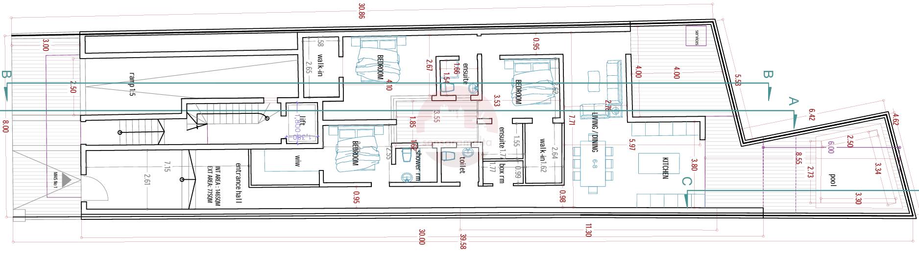
Birkirkara limits Of Iklin * Circa 223sqm Ground Floor Maisonette, yard pool and Optional Garage
Maisonette for sale • Birkirkara
Set in a sought-after residential area, this brand-new development in Birkirkara just off Iklin which is currently under construction - consists of a ground floor maiosnette , 6 apartments and 2 penthouses .
All units are being sold finished excluding bathrooms and internal doors, while pool area will be delivered fully finished.
This beautifully designed ground floor maisonette offers a practical yet elegant layout, featuring a spacious open-plan kitchen, living and dining area leading out to a lovely back yard with a pool area.
The property comprises three bedrooms, two of which enjoy ensuite , together with a walk-in wardrobe in the main bedroom and a main bathroom.
With an internal area of approximately 189 sqm and an external area of 11.5 sqm, this maisonette is perfect for families seeking comfortable living with private outdoor space in a central yet quiet area.
Project completion is targeted for end of May 2026.
Optional 2-car garages are available at €110,000.
Freehold .
Rooms and Features
Code
V023505
Locality
Birkirkara
Property type
Maisonette
Price
630,000 €
Locals
1
Bedrooms
3
Bathrooms
4
Sqm
223
Terraces
1
sqm Terrace
77
Floor
Ground floor
Energetic class
Not applicable
Property Conditions
Under Construction
Accessories:
Double Glazing, Swimming Pool
Photos • Floorplans • Video
Photos
Options
Print Property sheet
Send property sheet by mail
Schedule a visit
RealEstate Brokers
Schembri Maria Pawla
+356 7732 8183
+356 9998 6779
+356 9998 6775
pawla@sensaramalta.com
Information request
Name *
Phone *
E-mail *
Request Details *
I authorize the processing of my personal data according Regolamento UE n. 679/2016 -
Privacy Policy
I authorize the processing of data for marketing purposes, promotional activities, commercial offers and market surveys.
Send
Share on
We also recommend
for Sale
Santa Venera - 3 Bedroom Ground Floor Maisonette
379,000 €
for Sale
Balzan - 3 Bedroom Ground Floor Maisonette
445,000 €
for Sale
Tarxien - 1st Floor 3 Bedroom Maisonette + Half Roof
378,000 €
Keep default settings X
Use of cookies
This site uses cookies. Our (own) cookies and those of our Partners (third party cookies) are used to offer you a unique experience with us. For this reason, together with our partners, we collect and process non-sensitive information (such as the identifier of your device or the pages you visit).
At any time you can delete, modify or verify the information you share in
Cookie preference
or in our
Cookie Policy
and
Privacy Policy
.
Necessary
Functional
Profiling
Analytics
Accept all
Decline all
Accept selected
Cookie preference