Toggle navigation
(+356) 2164 9500
(+356) 9998 6779
info@sensaramalta.com
Head Office - Sensara Malta
Triq Santa Marija, Safi
09.00 to 19.00 hrs
Monday to Saturday
Home
Properties
Sales
Rentals
Foreign
About us
Services
Contacts
Send your request
Previous
Next
288,000 €
CLICK HERE for DETAILED PHOTOS
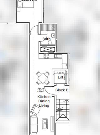
Gozo Kercem: Three bedroom SHELL PENTHOUSE
Penthouse for sale • Kercem Gozo
π’ Penthouse for Sale β Already Built & in Shell Form
β¨ Property Features:
ποΈ 3 Bedrooms
π 2 Bathrooms
πͺ Lift & Common Parts Included
π Large Front Terrace β perfect for outdoor living & entertaining
π€οΈ 3 Back Balconies β bright and airy throughout
π§± Already Built & in Shell Form β ready for your personal finishing touch
π Including Airspace β great investment potential
π Ideal for those seeking a spacious, sunlit home with room to customize
Rooms and Features
Code
V023501
Locality
Kercem Gozo
Property type
Penthouse
Price
288,000 €
Locals
1
Energetic class
Not applicable
Photos • Floorplans • Video
Photos
Options
Print Property sheet
Send property sheet by mail
Schedule a visit
RealEstate Brokers
Xiberras Joanie
+356 9985 2678
+356 9998 6779
+356 9998 6775
joanie.gozo@sensaramalta.com
Information request
Name *
Phone *
E-mail *
Request Details *
I authorize the processing of my personal data according Regolamento UE n. 679/2016 -
Privacy Policy
I authorize the processing of data for marketing purposes, promotional activities, commercial offers and market surveys.
Send
Share on
We also recommend
for Sale
St Venera - 1 Bedroom Ready Built Finished Penthouse
275,000 €
for Sale
Ghajnsielem - 2 Bedroom Penthouse + Airspace
195,000 €
for Sale
Qormi - Under Construction 1 Bedroom Penthouse + Airspace
287,000 €
Keep default settings X
Use of cookies
This site uses cookies. Our (own) cookies and those of our Partners (third party cookies) are used to offer you a unique experience with us. For this reason, together with our partners, we collect and process non-sensitive information (such as the identifier of your device or the pages you visit).
At any time you can delete, modify or verify the information you share in
Cookie preference
or in our
Cookie Policy
and
Privacy Policy
.
Necessary
Functional
Profiling
Analytics
Accept all
Decline all
Accept selected
Cookie preference