Toggle navigation
(+356) 2164 9500
(+356) 9998 6779
info@sensaramalta.com
Head Office - Sensara Malta
Triq Santa Marija, Safi
09.00 to 19.00 hrs
Monday to Saturday
Home
Properties
Sales
Rentals
Foreign
About us
Services
Contacts
Send your request
Previous
Next
290,000 €
CLICK HERE for DETAILED PHOTOS
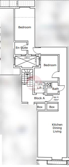
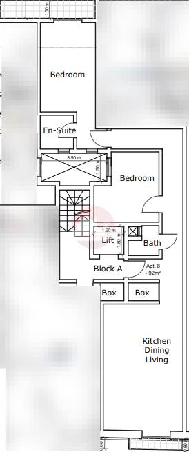
St Venera - 2 Bedroom Finished Apartment Ready Built
2 bedroom apartment for sale • Santa Venera
In St Venera comes this ready built third floor 2 bedroom apartment (circa 92sqm). Served with lift.
The layout includes an open-plan kitchen/dining/living area, main bathroom, master bedroom with an ensuite, and other other bedroom with a back balcony of circa 5sqm.
Property is to be sold finished excluding bathrooms and internal doors.
Estimate to be finished by March 2026.
Optional 1 or 2 car garages available starting from 45K.
Freehold
Rooms and Features
Code
V023495
Locality
Santa Venera
Property type
2 bedroom apartment
Price
290,000 €
Locals
1
Bedrooms
2
Bathrooms
2
Sqm
92
Balconies
2
Floor
3
Energetic class
Nondescript
Photos • Floorplans • Video
Photos
Options
Print Property sheet
Send property sheet by mail
Schedule a visit
RealEstate Brokers
Dimech Miriam
+356 7904 6848
+356 9998 6779
+356 9998 6775
miriamd@sensaramalta.com
Information request
Name *
Phone *
E-mail *
Request Details *
I authorize the processing of my personal data according Regolamento UE n. 679/2016 -
Privacy Policy
I authorize the processing of data for marketing purposes, promotional activities, commercial offers and market surveys.
Send
Share on
We also recommend
for Sale
Naxxar - 2 Bedroom 3rd Floor Finished Apartment On Plan
395,000 €
for Sale
Paola - 2 Bedroom Apartment + Washroom + Ownership of Half of Roof
276,500 €
for Sale
Msida - 2 Bedroom Finished Ground Floor Apartment On Plan
302,000 €
Keep default settings X
Use of cookies
This site uses cookies. Our (own) cookies and those of our Partners (third party cookies) are used to offer you a unique experience with us. For this reason, together with our partners, we collect and process non-sensitive information (such as the identifier of your device or the pages you visit).
At any time you can delete, modify or verify the information you share in
Cookie preference
or in our
Cookie Policy
and
Privacy Policy
.
Necessary
Functional
Profiling
Analytics
Accept all
Decline all
Accept selected
Cookie preference