Toggle navigation
(+356) 2164 9500
(+356) 9998 6779
info@sensaramalta.com
Head Office - Sensara Malta
Triq Santa Marija, Safi
09.00 to 19.00 hrs
Monday to Saturday
Home
Properties
Sales
Rentals
Foreign
About us
Services
Contacts
Send your request
Previous
Next
262,000 €
CLICK HERE for DETAILED PHOTOS
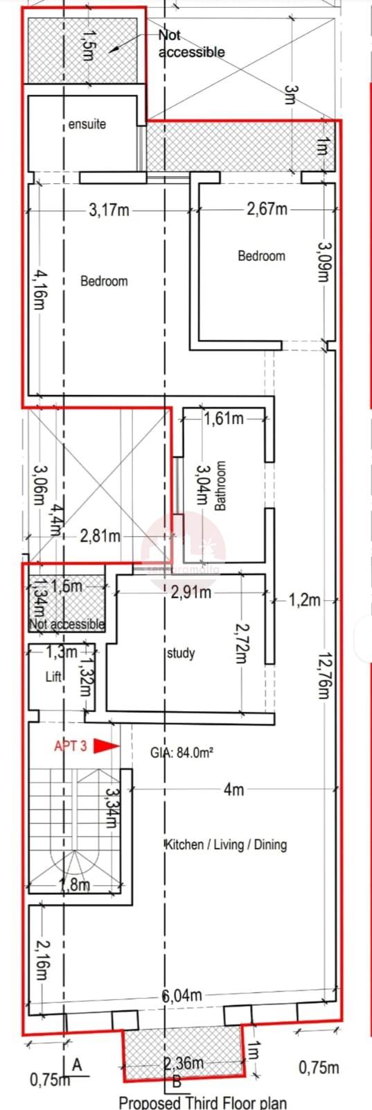
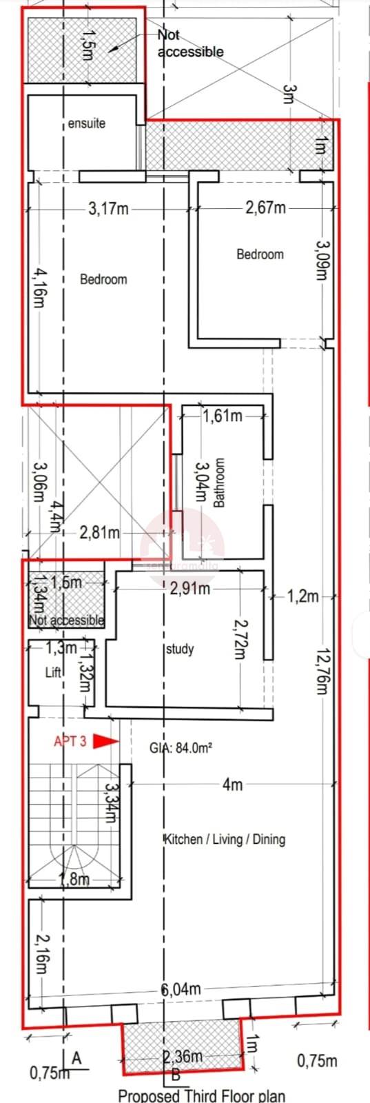
Fgura - 3rd Floor 3 Bedroom Apartment - On Plan
3+ bedroom apartment for sale • Fgura
On Plan - Third Floor Apartment situated in a quiet area of Fgura. Will be offered Finished excluding bathrooms and internal doors.
The Layout consisting of a Kitchen/Living/Dining with a balcony, a study (which can be used as a third bedroom), Main Bathroom, Main Bedroom with en-suite and another spare bedroom with a balcony.
Freehold
Rooms and Features
Code
V023485
Locality
Fgura
Property type
3+ bedroom apartment
Price
262,000 €
Locals
1
Bedrooms
3
Bathrooms
2
Sqm
84
Balconies
2
Energetic class
Nondescript
Photos • Floorplans • Video
Photos
Options
Print Property sheet
Send property sheet by mail
Schedule a visit
RealEstate Brokers
Vella Janice
+356 7989 0710
+356 9998 6779
+356 2164 9500
janicevella@sensaramalta.com
Information request
Name *
Phone *
E-mail *
Request Details *
I authorize the processing of my personal data according Regolamento UE n. 679/2016 -
Privacy Policy
I authorize the processing of data for marketing purposes, promotional activities, commercial offers and market surveys.
Send
Share on
We also recommend
for Sale
Birkirkara - 3 Bedroom Penthouse with Airspace
487,000 €
for Sale
Xewkija Gozo - Large 3 Bedroom Apartment
323,000 €
for Sale
Mosta - 3 bedroom Apartment + Optional garage
410,000 €
Keep default settings X
Use of cookies
This site uses cookies. Our (own) cookies and those of our Partners (third party cookies) are used to offer you a unique experience with us. For this reason, together with our partners, we collect and process non-sensitive information (such as the identifier of your device or the pages you visit).
At any time you can delete, modify or verify the information you share in
Cookie preference
or in our
Cookie Policy
and
Privacy Policy
.
Necessary
Functional
Profiling
Analytics
Accept all
Decline all
Accept selected
Cookie preference