Toggle navigation
(+356) 2164 9500
(+356) 9998 6779
info@sensaramalta.com
Head Office - Sensara Malta
Triq Santa Marija, Safi
09.00 to 19.00 hrs
Monday to Saturday
Home
Properties
Sales
Rentals
Foreign
About us
Services
Contacts
Send your request
Previous
Next
295,000 €
CLICK HERE for DETAILED PHOTOS
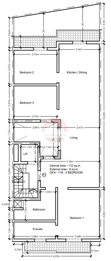
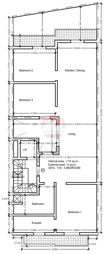
Fgura - 3 Bedroom First Floor Finished Apartment Ready Built
3+ bedroom apartment for sale • Fgura
Located in a small block of only four units (one apartment per floor), this ready-built first floor, three-bedroom apartment in Fgura offers a comfortable and modern layout.
Upon entering, one finds a spacious open-plan kitchen, dining, and living area leading to a front balcony, a main bathroom, and three double bedrooms. The master bedroom includes an en-suite and a private balcony.
The apartment is ready built, with finishing works currently underway, and is being offered finished, excluding bathrooms and internal doors.
Rooms and Features
Code
V023481
Locality
Fgura
Property type
3+ bedroom apartment
Price
295,000 €
Locals
1
Bedrooms
3
Bathrooms
2
Sqm
118
Terraces
2
Floor
1
Energetic class
Nondescript
Photos • Floorplans • Video
Photos
Options
Print Property sheet
Send property sheet by mail
Schedule a visit
RealEstate Brokers
Kitney Claudia
+356 9940 4319
+356 9998 6779
+356 9998 6775
claudia@sensaramalta.com
Information request
Name *
Phone *
E-mail *
Request Details *
I authorize the processing of my personal data according Regolamento UE n. 679/2016 -
Privacy Policy
I authorize the processing of data for marketing purposes, promotional activities, commercial offers and market surveys.
Send
Share on
We also recommend
for Sale
Msida - 3 Bedroom Finished Ground Floor Apartment On Plan
360,000 €
for Sale
Mellieha - 3rd Floor 3 Bedroom Finished Apartment + Optional Garage
320,000 €
for Sale
Ghaxaq - 3 Bedroom 145sqm Apartment + 2 Terraces + Views
353,000 €
Keep default settings X
Use of cookies
This site uses cookies. Our (own) cookies and those of our Partners (third party cookies) are used to offer you a unique experience with us. For this reason, together with our partners, we collect and process non-sensitive information (such as the identifier of your device or the pages you visit).
At any time you can delete, modify or verify the information you share in
Cookie preference
or in our
Cookie Policy
and
Privacy Policy
.
Necessary
Functional
Profiling
Analytics
Accept all
Decline all
Accept selected
Cookie preference