Toggle navigation
(+356) 2164 9500
(+356) 9998 6779
info@sensaramalta.com
Head Office - Sensara Malta
Triq Santa Marija, Safi
09.00 to 19.00 hrs
Monday to Saturday
Home
Properties
Sales
Rentals
Foreign
About us
Services
Contacts
Send your request
Previous
Next
280,000 €
CLICK HERE for DETAILED PHOTOS
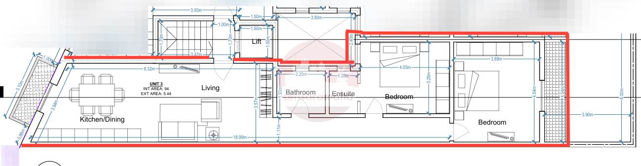
Zabbar - 2 Bedroom Apartment Finished - On Plan
2 bedroom apartment for sale • Zabbar
On Plan - First Floor Apartment. Forms part of a block of 9 units, served with lift. Estimated to be completed by Mid 2027, being offered Finished Excluding Bathrooms and Internal Doors.
Consisting of an open plan Kitchen/living/dining with a balcony, Main Bathroom, Two Bedrooms of which the main is served with an en-suite and the spare bedroom enjoys a longish balcony. Optional Garages are also available for an additional cost.
Freehold
Rooms and Features
Code
V023465
Locality
Zabbar
Property type
2 bedroom apartment
Price
280,000 €
Locals
1
Bedrooms
2
Bathrooms
2
Sqm
100
Balconies
2
Energetic class
Nondescript
Photos • Floorplans • Video
Photos
Options
Print Property sheet
Send property sheet by mail
Schedule a visit
RealEstate Brokers
Jenkins Rita
+356 7712 7772
+356 9998 6779
+356 9998 6775
rita@sensaramalta.com
Information request
Name *
Phone *
E-mail *
Request Details *
I authorize the processing of my personal data according Regolamento UE n. 679/2016 -
Privacy Policy
I authorize the processing of data for marketing purposes, promotional activities, commercial offers and market surveys.
Send
Share on
We also recommend
for Sale
Zabbar - 2 Bedroom First Floor Apartment - Ready Build - Shell Form
256,000 €
for Sale
Fgura - 2 Bedroom Apartment On Plan
243,000 €
for Sale
Luqa - 2 Bedroom Fully Finished 1st Floor Apartment Ready Built
340,000 €
Keep default settings X
Use of cookies
This site uses cookies. Our (own) cookies and those of our Partners (third party cookies) are used to offer you a unique experience with us. For this reason, together with our partners, we collect and process non-sensitive information (such as the identifier of your device or the pages you visit).
At any time you can delete, modify or verify the information you share in
Cookie preference
or in our
Cookie Policy
and
Privacy Policy
.
Necessary
Functional
Profiling
Analytics
Accept all
Decline all
Accept selected
Cookie preference