Toggle navigation
(+356) 2164 9500
(+356) 9998 6779
info@sensaramalta.com
Head Office - Sensara Malta
Triq Santa Marija, Safi
09.00 to 19.00 hrs
Monday to Saturday
Home
Properties
Sales
Rentals
Foreign
About us
Services
Contacts
Send your request
Previous
Next
595,000 €
CLICK HERE for DETAILED PHOTOS
Zabbar - 3 Bedroom Finished Terraced House With Roof
Terraced house for sale • Zabbar
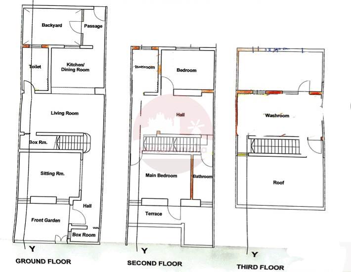
Located in a quiet area of Zabbar, well-kept three-bedroom Terraced house of plot Size circa 117 Sqm/ 60Ft x 21Ft / 18m x 6.5m.
The property consists of a hallway upon entry, with a living room on the left-hand side. It also features a combined kitchen, dining, and living area, a yard, a main bathroom, and a box room on the first floor.
The second floor includes three bedrooms, two double bedrooms and one study, along with a hallway that can easily be converted into an additional room. The master bedroom also enjoys access to a private terrace.
On the third floor, there is a washroom centrally located between two roofs on either side.
This property does not include a garage, however there is ample parking available in the area.
This property is being offered fully finished and in excellent condition.
Given it's attractive layout and desirable features, it is expected to sell quickly.
Rooms and Features
Code
V023424
Locality
Zabbar
Property type
Terraced house
Price
595,000 €
Locals
1
Bedrooms
3
Sqm
117
Terraces
5
Floor
Ground floor
Energetic class
Nondescript
Photos • Floorplans • Video
Photos
Options
Print Property sheet
Send property sheet by mail
Schedule a visit
RealEstate Brokers
Vella Ludric
+356 7909 1346
+356 9998 6779
+356 9998 6775
ludric@sensaramalta.com
Information request
Name *
Phone *
E-mail *
Request Details *
I authorize the processing of my personal data according Regolamento UE n. 679/2016 -
Privacy Policy
I authorize the processing of data for marketing purposes, promotional activities, commercial offers and market surveys.
Send
Share on
We also recommend
for Sale
Nadur - Newly Built House With Pool And Garage
855,000 €
for Sale
Victoria Gozo - Terraced House Development 4+1 Area
676,000 €
for Sale
Nadur - Newly Built House With Pool And Garage
860,000 €
Keep default settings X
Use of cookies
This site uses cookies. Our (own) cookies and those of our Partners (third party cookies) are used to offer you a unique experience with us. For this reason, together with our partners, we collect and process non-sensitive information (such as the identifier of your device or the pages you visit).
At any time you can delete, modify or verify the information you share in
Cookie preference
or in our
Cookie Policy
and
Privacy Policy
.
Necessary
Functional
Profiling
Analytics
Accept all
Decline all
Accept selected
Cookie preference