Toggle navigation
(+356) 2164 9500
(+356) 9998 6779
info@sensaramalta.com
Head Office - Sensara Malta
Triq Santa Marija, Safi
09.00 to 19.00 hrs
Monday to Saturday
Home
Properties
Sales
Rentals
Foreign
About us
Services
Contacts
Send your request
Previous
Next
675,000 €
CLICK HERE for DETAILED PHOTOS
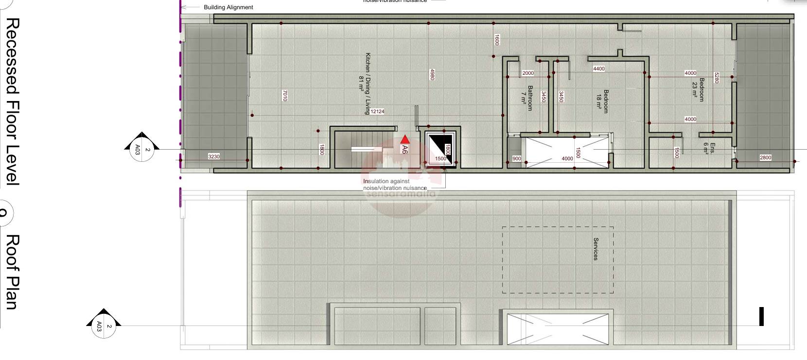
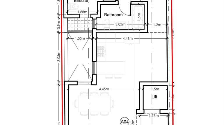
Marsascala - 230sqm 2 Bedroom Fully Finished Penthouse + Terrace + Optional Garage
Penthouse for sale • Marsascala
New and recently built in the heart of Marsacala comes this hard to come by circa 230 sqm 2 bedroom penthouse which is situated on the top 6th floor level in a residential block of only 5 units. All units are being offered fully finished including bathrooms and internal doors.
This comfortable layout consist in a large front open plan of circa 81sqm overlooking front terrace, master bathroom, 2 double bedrooms of which the main is served with ensuit and a back terrace.
The property also own the full roof and airspace.
Optional interconnected garages are also available.
Freehold .
Rooms and Features
Code
V023422
Locality
Marsascala
Property type
Penthouse
Price
675,000 €
Locals
1
Bedrooms
2
Bathrooms
2
Sqm
230
Terraces
2
Floor
6
Energetic class
Not applicable
Property Conditions
New
Accessories:
Double Glazing, Veranda
Photos • Floorplans • Video
Photos
Options
Print Property sheet
Send property sheet by mail
Schedule a visit
RealEstate Brokers
Schembri Maria Pawla
+356 7732 8183
+356 9998 6779
+356 9998 6775
pawla@sensaramalta.com
Information request
Name *
Phone *
E-mail *
Request Details *
I authorize the processing of my personal data according Regolamento UE n. 679/2016 -
Privacy Policy
I authorize the processing of data for marketing purposes, promotional activities, commercial offers and market surveys.
Send
Share on
We also recommend
for Sale
Rabat - 3 Bedroom Finished Luxurious Penthouse + Pool + Terrace + Views
2,800,000 €
for Sale
Hamrun - 1 Bedroom Penthouse Fully Finished
276,500 €
for Sale
Birkirkara - 3 Bedroom Penthouse with Airspace
512,000 €
Keep default settings X
Use of cookies
This site uses cookies. Our (own) cookies and those of our Partners (third party cookies) are used to offer you a unique experience with us. For this reason, together with our partners, we collect and process non-sensitive information (such as the identifier of your device or the pages you visit).
At any time you can delete, modify or verify the information you share in
Cookie preference
or in our
Cookie Policy
and
Privacy Policy
.
Necessary
Functional
Profiling
Analytics
Accept all
Decline all
Accept selected
Cookie preference