Toggle navigation
(+356) 2164 9500
(+356) 9998 6779
info@sensaramalta.com
Head Office - Sensara Malta
Triq Santa Marija, Safi
09.00 to 19.00 hrs
Monday to Saturday
Home
Properties
Sales
Rentals
Foreign
About us
Services
Contacts
Send your request
Previous
Next
415,000 €
CLICK HERE for DETAILED PHOTOS
Balzan - 3 Bedroom Finished 2nd Floor Apartment On Plan
3+ bedroom apartment for sale • Balzan
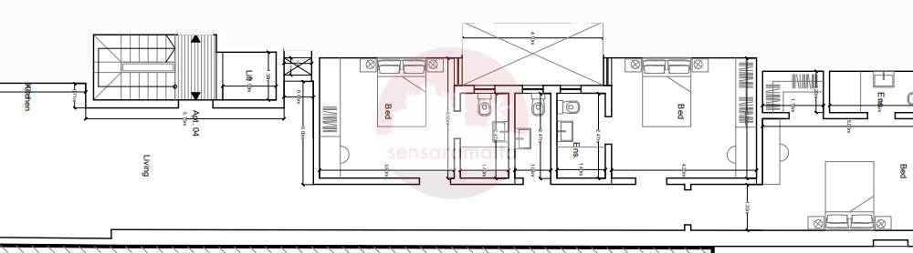
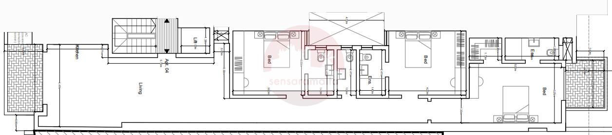
Located in a small block of only 8 units, in a central location of Balzan.
Second floor three-bedroom apartment currently offered on plan.
It consists of an open-plan kitchen/dining/living with a front terrace, a main bathroom, and three double bedrooms, all with ensuite bathroom. The master bedroom also features a walk-in wardrobe and has direct access to a terrace.
This Property is estimate to be completed by mid 2027 and is being offered finished. Optional interconnected garages are available at an additional price.
Rooms and Features
Code
V023266
Locality
Balzan
Property type
3+ bedroom apartment
Price
415,000 €
Locals
1
Bedrooms
3
Bathrooms
4
Sqm
128
Floor
2
Energetic class
Nondescript
Photos • Floorplans • Video
Photos
Options
Print Property sheet
Send property sheet by mail
Schedule a visit
RealEstate Brokers
Zahra Gaynor
+356 7933 5643
+356 9998 6775
+356 9998 6779
gaynor@sensaramalta.com
Information request
Name *
Phone *
E-mail *
Request Details *
I authorize the processing of my personal data according Regolamento UE n. 679/2016 -
Privacy Policy
I authorize the processing of data for marketing purposes, promotional activities, commercial offers and market surveys.
Send
Share on
We also recommend
for Sale
Mosta, Already Built ** Finished 3 Bedroom Apartment with terrace & balcony ** optional Garages
394,000 €
for Sale
Sannat Gozo - 3 Bdr Apt Shell Form + Communal Pool
420,000 €
for Sale
Ta' Giorni - 3 Bedroom Furnished Apartment
307,000 €
Keep default settings X
Use of cookies
This site uses cookies. Our (own) cookies and those of our Partners (third party cookies) are used to offer you a unique experience with us. For this reason, together with our partners, we collect and process non-sensitive information (such as the identifier of your device or the pages you visit).
At any time you can delete, modify or verify the information you share in
Cookie preference
or in our
Cookie Policy
and
Privacy Policy
.
Necessary
Functional
Profiling
Analytics
Accept all
Decline all
Accept selected
Cookie preference