Toggle navigation
(+356) 2164 9500
(+356) 9998 6779
info@sensaramalta.com
Head Office - Sensara Malta
Triq Santa Marija, Safi
09.00 to 19.00 hrs
Monday to Saturday
Home
Properties
Sales
Rentals
Foreign
About us
Services
Contacts
Send your request
Previous
Next
1,150,000 €
CLICK HERE for DETAILED PHOTOS
Rabat - 3 Bedroom Finished Luxurious Apartment + Pool + Terrace + Views
3+ bedroom apartment for sale • Rabat
A ready-built, highly finished three-bedroom apartment featuring elegant bathrooms and a modern VRV air-conditioning system.
The property offers open views, access to a communal swimming pool, and combines comfort with convenience.
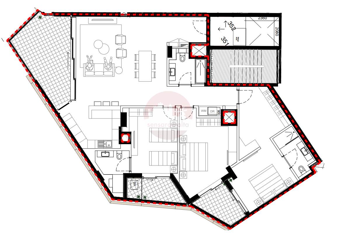
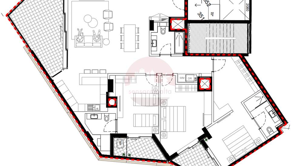
Consists of three-bedrooms, two of them with their own ensuite bathroom, a laundry room, and a main bathroom. The open-plan kitchen, dining, and living area creates a spacious layout, while every room enjoys direct access to a balcony.
Perfect for those looking to retire in comfort, this apartment offers the ideal balance of downsizing to a manageable space while still enjoying a luxurious lifestyle.
Car spaces and garages are available at an additional price.
Rooms and Features
Code
V023113
Locality
Rabat
Property type
3+ bedroom apartment
Price
1,150,000 €
Locals
1
Bedrooms
3
Bathrooms
3
Sqm
206
Floor
5
Energetic class
Nondescript
Photos • Floorplans • Video
Photos
Options
Print Property sheet
Send property sheet by mail
Schedule a visit
RealEstate Brokers
Kitney Claudia
+356 9940 4319
+356 9998 6779
+356 9998 6775
claudia@sensaramalta.com
Information request
Name *
Phone *
E-mail *
Request Details *
I authorize the processing of my personal data according Regolamento UE n. 679/2016 -
Privacy Policy
I authorize the processing of data for marketing purposes, promotional activities, commercial offers and market surveys.
Send
Share on
We also recommend
for Sale
Qala Gozo - 300sqm Large 3 Bedroom Maisonette + Backyard + Optional Garage
300,000 €
for Sale
Marsascala - 3 Bedroom Finished Ready Built 4th Floor Apartment
355,000 €
for Sale
Santa Lucia Gozo - 3 Bedroom Penthouse + Views
349,000 €
Keep default settings X
Use of cookies
This site uses cookies. Our (own) cookies and those of our Partners (third party cookies) are used to offer you a unique experience with us. For this reason, together with our partners, we collect and process non-sensitive information (such as the identifier of your device or the pages you visit).
At any time you can delete, modify or verify the information you share in
Cookie preference
or in our
Cookie Policy
and
Privacy Policy
.
Necessary
Functional
Profiling
Analytics
Accept all
Decline all
Accept selected
Cookie preference