Toggle navigation
(+356) 2164 9500
(+356) 9998 6779
info@sensaramalta.com
Head Office - Sensara Malta
Triq Santa Marija, Safi
09.00 to 19.00 hrs
Monday to Saturday
Home
Properties
Sales
Rentals
Foreign
About us
Services
Contacts
Send your request
Previous
Next
195,000 €
CLICK HERE for DETAILED PHOTOS
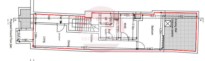
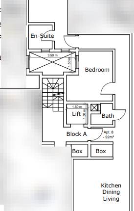
Hamrun - 2 Bedroom Ground Floor Apartment On Plan
2 bedroom apartment for sale • Hamrun
Located on the ground floor level in a new block in Hamrun comes this two-bedroom apartment currently on plan.
Consists of an open plan kitchen/dining/living complemented by a front balcony, hallway, a bathroom, master bedroom with leading to a backyard and a spare bedroom.
This apartment is being offered in advanced shell form and is estimate to be completed by 2026.
Rooms and Features
Code
V022956
Locality
Hamrun
Property type
2 bedroom apartment
Price
195,000 €
Locals
1
Bedrooms
2
Bathrooms
1
Sqm
60
Balconies
1
Terraces
1
Floor
Ground floor
Energetic class
Nondescript
Photos • Floorplans • Video
Photos
Options
Print Property sheet
Send property sheet by mail
Schedule a visit
RealEstate Brokers
Aguis Lorna
+356 9961 6121
+356 9998 6779
+356 2164 9500
lorna@sensaramalta.com
Information request
Name *
Phone *
E-mail *
Request Details *
I authorize the processing of my personal data according Regolamento UE n. 679/2016 -
Privacy Policy
I authorize the processing of data for marketing purposes, promotional activities, commercial offers and market surveys.
Send
Share on
We also recommend
for Sale
Floriana - 2 Bedroom Fully Finished Apartment
750,000 €
for Sale
St Venera - 2 Bedroom Finished Apartment Ready Built
290,000 €
for Sale
Sannat Gozo - 2 Bedroom Shell Form Apt
220,000 €
Keep default settings X
Use of cookies
This site uses cookies. Our (own) cookies and those of our Partners (third party cookies) are used to offer you a unique experience with us. For this reason, together with our partners, we collect and process non-sensitive information (such as the identifier of your device or the pages you visit).
At any time you can delete, modify or verify the information you share in
Cookie preference
or in our
Cookie Policy
and
Privacy Policy
.
Necessary
Functional
Profiling
Analytics
Accept all
Decline all
Accept selected
Cookie preference