Toggle navigation
(+356) 2164 9500
(+356) 9998 6779
info@sensaramalta.com
Head Office - Sensara Malta
Triq Santa Marija, Safi
09.00 to 19.00 hrs
Monday to Saturday
Home
Properties
Sales
Rentals
Foreign
About us
Services
Contacts
Send your request
Previous
Next
241,000 €
CLICK HERE for DETAILED PHOTOS
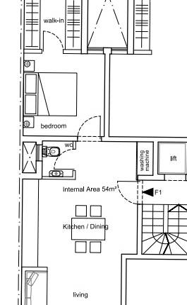
San Gwann - 1 Bedroom 1st Floor Apartment On Plan
1 bedroom apartment for sale • San Gwann
Located on the first floor in a new block in San Gwann comes this one-bedroom apartment currently on plan.
Consists of an open plan kitchen/dining/living complemented by a terrace, hallway, a bathroom and a double bedroom which also has the access to the terrace.
This apartment is being offered in advanced shell form.
Construction has started and is estimate to be completed by 2026.
Rooms and Features
Code
V022950
Locality
San Gwann
Property type
1 bedroom apartment
Price
241,000 €
Locals
1
Bedrooms
1
Bathrooms
2
Sqm
51
Floor
1
Energetic class
Nondescript
Property Conditions
Next Realization
Photos • Floorplans • Video
Photos
Options
Print Property sheet
Send property sheet by mail
Schedule a visit
RealEstate Brokers
Hughes Jeffrey
+356 9980 0004
+356 9998 6779
+356 9998 6775
hughes@sensaramalta.com
Information request
Name *
Phone *
E-mail *
Request Details *
I authorize the processing of my personal data according Regolamento UE n. 679/2016 -
Privacy Policy
I authorize the processing of data for marketing purposes, promotional activities, commercial offers and market surveys.
Send
Share on
We also recommend
for Sale
San Pawl il-Bahar - 4th Floor Studio Finished Apartment + Seaviews
230,500 €
for Sale
San Gwann - 1 Bedroom 4th Floor Apartment On Plan
252,000 €
for Sale
Dingli - 3rd Floor 1 Bedroom Apartment
250,000 €
Keep default settings X
Use of cookies
This site uses cookies. Our (own) cookies and those of our Partners (third party cookies) are used to offer you a unique experience with us. For this reason, together with our partners, we collect and process non-sensitive information (such as the identifier of your device or the pages you visit).
At any time you can delete, modify or verify the information you share in
Cookie preference
or in our
Cookie Policy
and
Privacy Policy
.
Necessary
Functional
Profiling
Analytics
Accept all
Decline all
Accept selected
Cookie preference