Toggle navigation
(+356) 2164 9500
(+356) 9998 6779
info@sensaramalta.com
Head Office - Sensara Malta
Triq Santa Marija, Safi
09.00 to 19.00 hrs
Monday to Saturday
Home
Properties
Sales
Rentals
Foreign
About us
Services
Contacts
Send your request
Previous
Next
220,000 €
CLICK HERE for DETAILED PHOTOS
Marsalforn Gozo - 2 Bedroom Apartment + Airspace
2 bedroom apartment for sale • Marsalforn Gozo
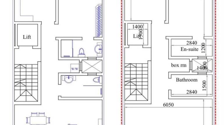
ON PLAN – Sixth Floor TWO -Bedroom Apartment with Airspace, Minutes from the Beach
An excellent opportunity to acquire a TWO-bedroom apartment set on the sixth floor, located just minutes away from the beach. Currently on plan and offered in shell form, this property is ideal as a holiday retreat or investment.
✔️ Airspace Included – Offering future development potential or the option to create a private roof terrace
✔️ Lift & Finished Common Parts Included – Ensuring convenience and accessibility
✔️ Prime Location – Just a short walk to the seafront and all amenities
✔️ Ideal for Holiday Letting or a Coastal Home
Enjoy the freedom to finish the space to your taste and make the most of its fantastic position close to the beach.
📍 Freehold | On Plan | Shell Form | Sixth Floor | Great Investment
Rooms and Features
Code
V022708
Locality
Marsalforn Gozo
Property type
2 bedroom apartment
Price
220,000 €
Locals
1
Sqm
82
sqm Terrace
26
Energetic class
Not applicable
Photos • Floorplans • Video
Photos
Options
Print Property sheet
Send property sheet by mail
Schedule a visit
RealEstate Brokers
Xiberras Joanie
+356 9985 2678
+356 9998 6779
+356 9998 6775
joanie.gozo@sensaramalta.com
Information request
Name *
Phone *
E-mail *
Request Details *
I authorize the processing of my personal data according Regolamento UE n. 679/2016 -
Privacy Policy
I authorize the processing of data for marketing purposes, promotional activities, commercial offers and market surveys.
Send
Share on
We also recommend
for Sale
Zabbar - 2 Bedroom 2nd Floor Finished Apartment On Plan
307,000 €
for Sale
Pieta Under Construction 3rd floor 2 Bedroom Fully finished apartment
315,000 €
for Sale
Mellieha Ghadira - 2 Bedroom Fifth Floor Apartment
551,000 €
Keep default settings X
Use of cookies
This site uses cookies. Our (own) cookies and those of our Partners (third party cookies) are used to offer you a unique experience with us. For this reason, together with our partners, we collect and process non-sensitive information (such as the identifier of your device or the pages you visit).
At any time you can delete, modify or verify the information you share in
Cookie preference
or in our
Cookie Policy
and
Privacy Policy
.
Necessary
Functional
Profiling
Analytics
Accept all
Decline all
Accept selected
Cookie preference