Toggle navigation
(+356) 2164 9500
(+356) 9998 6779
info@sensaramalta.com
Head Office - Sensara Malta
Triq Santa Marija, Safi
09.00 to 19.00 hrs
Monday to Saturday
Home
Properties
Sales
Rentals
Foreign
About us
Services
Contacts
Send your request
Previous
Next
330,000 €
CLICK HERE for DETAILED PHOTOS
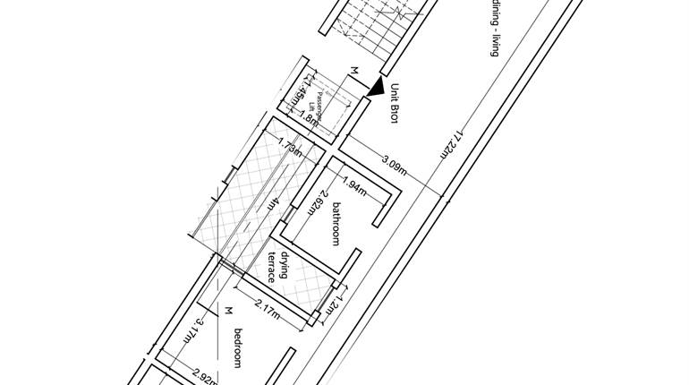
Balzan - Third Floor Finished 2 Bedroom Apartment On Plan
2 bedroom apartment for sale • Balzan
Located in Balzan comes this third floor finished apartment on plan and is estimate to be completed by Mid-2017.
Consists of an open plan kitchen/dining/living with a front balcony, main bathroom, two double bedrooms and a box room, served with a lift and offered finished excluding bathrooms and doors.
Ideal for first time buyers or as a rental investment.
Rooms and Features
Code
V022695
Locality
Balzan
Property type
2 bedroom apartment
Price
330,000 €
Locals
1
Bedrooms
2
Bathrooms
2
Sqm
93
Balconies
1
Floor
3
Energetic class
Nondescript
Photos • Floorplans • Video
Photos
Options
Print Property sheet
Send property sheet by mail
Schedule a visit
RealEstate Brokers
Schembri Josianne
+356 7782 4222
+356 9998 6779
+356 9998 6775
josianne@sensaramalta.com
Information request
Name *
Phone *
E-mail *
Request Details *
I authorize the processing of my personal data according Regolamento UE n. 679/2016 -
Privacy Policy
I authorize the processing of data for marketing purposes, promotional activities, commercial offers and market surveys.
Send
Share on
We also recommend
for Sale
Fgura - 2 Bedroom Finished Apartment On Plan
307,000 €
for Sale
Mellieha (Ghadira) - 2 Bedroom Ground Floor Apartment + Yard
267,000 €
for Sale
Iklin - Already Built 2 Bedroom Fully Finished Apartment at Elevated Ground Floor + Optional Garage
308,000 €
Keep default settings X
Use of cookies
This site uses cookies. Our (own) cookies and those of our Partners (third party cookies) are used to offer you a unique experience with us. For this reason, together with our partners, we collect and process non-sensitive information (such as the identifier of your device or the pages you visit).
At any time you can delete, modify or verify the information you share in
Cookie preference
or in our
Cookie Policy
and
Privacy Policy
.
Necessary
Functional
Profiling
Analytics
Accept all
Decline all
Accept selected
Cookie preference