Toggle navigation
(+356) 2164 9500
(+356) 9998 6779
info@sensaramalta.com
Head Office - Sensara Malta
Triq Santa Marija, Safi
09.00 to 19.00 hrs
Monday to Saturday
Home
Properties
Sales
Rentals
Foreign
About us
Services
Contacts
Send your request
Previous
Next
350,000 €
CLICK HERE for DETAILED PHOTOS
Safi - 1st Floor 3 Bedroom Finished Apartment - Under Construction
3+ bedroom apartment for sale • Safi
New residential block in Hal Safi which is currently under construction is now for sale. The block consists of elevated maisonettes , 3 floors of apartments 3 units on each floor and 2 penthouses with 2 basement floors with garages .
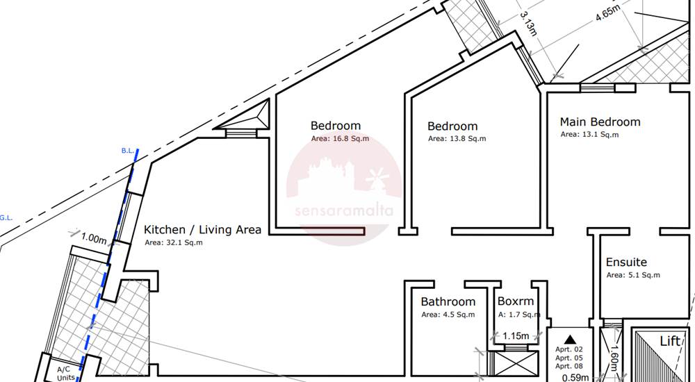
This apartment is situated on the 1st floor and its layout consists on a very comfortable open plan , with front balcony , master bathroom, washroom, 3 double bedrooms , of which one of the spare bedroom is served with a balcony and main is served with ensuite and balcony .
The property is being offered finished excluding bathrooms and internal doors .
Optional interconnected garages are also available starting from 47k
Freehold .
Rooms and Features
Code
V022672
Locality
Safi
Property type
3+ bedroom apartment
Price
350,000 €
Locals
1
Bedrooms
3
Bathrooms
2
Sqm
125
Balconies
2
sqm Terrace
21
Floor
1
Energetic class
Not applicable
Property Conditions
Under Construction
Accessories:
Photos • Floorplans • Video
Photos
Options
Print Property sheet
Send property sheet by mail
Schedule a visit
RealEstate Brokers
Schembri Maria Pawla
+356 7732 8183
+356 9998 6779
+356 9998 6775
pawla@sensaramalta.com
Information request
Name *
Phone *
E-mail *
Request Details *
I authorize the processing of my personal data according Regolamento UE n. 679/2016 -
Privacy Policy
I authorize the processing of data for marketing purposes, promotional activities, commercial offers and market surveys.
Send
Share on
We also recommend
for Sale
Zabbar - 3 Bedroom Apartment - Finished
320,000 €
for Sale
Zabbar - Already Built , 3 bedrooms elevated Ground fully Floor Finished Apartment
340,000 €
for Sale
Zejtun - 3rd Floor 2 Bedroom + Study Apartment Shell Form
280,000 €
Keep default settings X
Use of cookies
This site uses cookies. Our (own) cookies and those of our Partners (third party cookies) are used to offer you a unique experience with us. For this reason, together with our partners, we collect and process non-sensitive information (such as the identifier of your device or the pages you visit).
At any time you can delete, modify or verify the information you share in
Cookie preference
or in our
Cookie Policy
and
Privacy Policy
.
Necessary
Functional
Profiling
Analytics
Accept all
Decline all
Accept selected
Cookie preference