Toggle navigation
(+356) 2164 9500
(+356) 9998 6779
info@sensaramalta.com
Head Office - Sensara Malta
Triq Santa Marija, Safi
09.00 to 19.00 hrs
Monday to Saturday
Home
Properties
Sales
Rentals
Foreign
About us
Services
Contacts
Send your request
Previous
Next
328,000 €
CLICK HERE for DETAILED PHOTOS
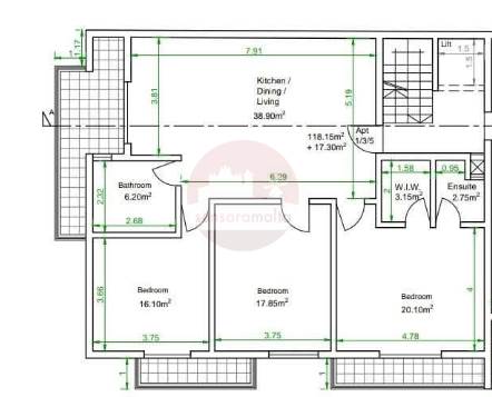
Qormi - 3rd Floor 3 Bedroom Finished Apartment + Optional Garage
3+ bedroom apartment for sale • Qormi
New development in Qormi comes this small residential block, which consists of a ground-floor maisonette, 3 apartments, and a penthouse.
All units are being offered finished, excluding bathrooms and internal doors, with optional 2 car garage in a finished state plastered and with door at Eur 77,000
This apartment is situated on the 3rd floor and consists of an open plan upon entrance overlooking it's front terrace, 3 double bedrooms of which the main is served with en-suite and balcony, master bathroom, and a 2nd back balcony.
The building phase has started and will be ready in just a few months
Freehold.
Rooms and Features
Code
V022643
Locality
Qormi
Property type
3+ bedroom apartment
Price
328,000 €
Locals
1
Bedrooms
3
Bathrooms
2
Sqm
127
Balconies
2
Terraces
1
Floor
3
Energetic class
Not applicable
Property Conditions
Under Construction
Photos • Floorplans • Video
Photos
Options
Print Property sheet
Send property sheet by mail
Schedule a visit
RealEstate Brokers
Grima Vince
+356 9940 5538
+356 9998 6779
+356 2164 9500
vince@sensaramalta.com
Grima Marthese
+356 7929 1233
+356 9998 6779
+356 9998 6775
marthese@sensaramalta.com
Information request
Name *
Phone *
E-mail *
Request Details *
I authorize the processing of my personal data according Regolamento UE n. 679/2016 -
Privacy Policy
I authorize the processing of data for marketing purposes, promotional activities, commercial offers and market surveys.
Send
Share on
We also recommend
for Sale
Birkirkara, 1St floor, 4 Bedroom 4 Bathroom Finished Apartment + Yard , Already Built
440,500 €
for Sale
Ghajnsielem Gozo - 3 Bedroom Apartments
237,000 €
for Sale
Bahrija - Highly Furnished Elevated Ground Floor 3 Bedroom Apartment + 2 Yards + Garage
512,000 €
Keep default settings X
Use of cookies
This site uses cookies. Our (own) cookies and those of our Partners (third party cookies) are used to offer you a unique experience with us. For this reason, together with our partners, we collect and process non-sensitive information (such as the identifier of your device or the pages you visit).
At any time you can delete, modify or verify the information you share in
Cookie preference
or in our
Cookie Policy
and
Privacy Policy
.
Necessary
Functional
Profiling
Analytics
Accept all
Decline all
Accept selected
Cookie preference