Toggle navigation
(+356) 2164 9500
(+356) 9998 6779
info@sensaramalta.com
Head Office - Sensara Malta
Triq Santa Marija, Safi
09.00 to 19.00 hrs
Monday to Saturday
Home
Properties
Sales
Rentals
Foreign
About us
Services
Contacts
Send your request
Previous
Next
340,000 €
CLICK HERE for DETAILED PHOTOS
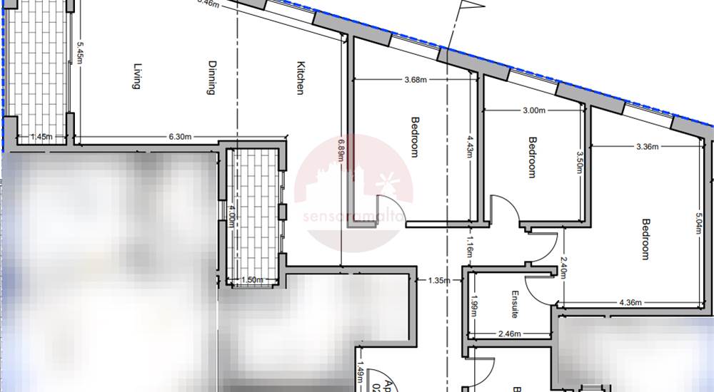
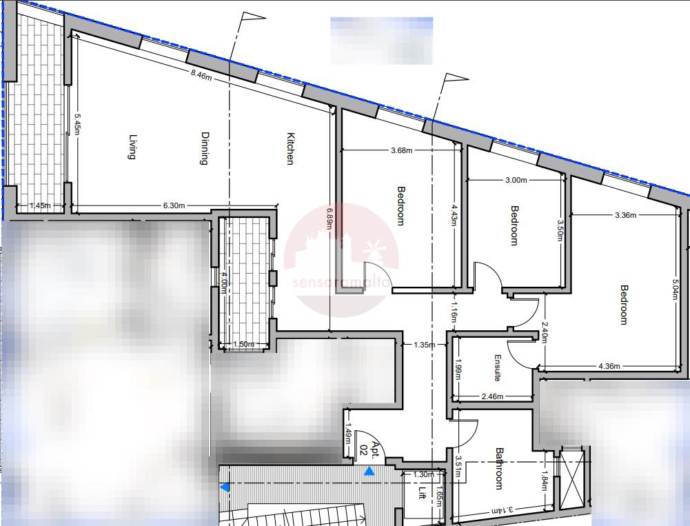
Zabbar - 1st Floor 158sqm 3 Double Bedroom Highly Finished Apartment + Yard + Terrace
3+ bedroom apartment for sale • Zabbar
In a newly built residential block comes this large 1st floor apartment which is being offered fully highly finished including bathrooms and internal doors .
Upon entering one finds a small hall , main bathroom ,3 double bedrooms (master with ensuite) , internal yard, a an large open plan overlooking a front terrace.
Optional garages or car spaces are available starting from 45.000 Euros.
The block is fully built and is scheduled to be fully completed by end of 2026.
Freehold.
Rooms and Features
Code
V022395
Locality
Zabbar
Property type
3+ bedroom apartment
Price
340,000 €
Locals
1
Bedrooms
3
Bathrooms
2
Sqm
158
Balconies
1
Floor
1
Energetic class
Nondescript
Property Conditions
New
Accessories:
Double Glazing
Photos • Floorplans • Video
Photos
Options
Print Property sheet
Send property sheet by mail
Schedule a visit
RealEstate Brokers
Schembri Maria Pawla
+356 7732 8183
+356 9998 6779
+356 9998 6775
pawla@sensaramalta.com
Information request
Name *
Phone *
E-mail *
Request Details *
I authorize the processing of my personal data according Regolamento UE n. 679/2016 -
Privacy Policy
I authorize the processing of data for marketing purposes, promotional activities, commercial offers and market surveys.
Send
Share on
We also recommend
for Sale
Birkirkara - 3rd Floor 3 Bedroom Apartment
348,500 €
for Sale
Birzebbugia - 2nd Floor 3 Bedroom Finished Apartment + Unobstructed Country Views
358,500 €
for Sale
M'Scala - 3 Bedroom Apartment 275sqm with Sea View
870,000 €
Keep default settings X
Use of cookies
This site uses cookies. Our (own) cookies and those of our Partners (third party cookies) are used to offer you a unique experience with us. For this reason, together with our partners, we collect and process non-sensitive information (such as the identifier of your device or the pages you visit).
At any time you can delete, modify or verify the information you share in
Cookie preference
or in our
Cookie Policy
and
Privacy Policy
.
Necessary
Functional
Profiling
Analytics
Accept all
Decline all
Accept selected
Cookie preference