Toggle navigation
(+356) 2164 9500
(+356) 9998 6779
info@sensaramalta.com
Head Office - Sensara Malta
Triq Santa Marija, Safi
09.00 to 19.00 hrs
Monday to Saturday
Home
Properties
Sales
Rentals
Foreign
About us
Services
Contacts
Send your request
Previous
Next
295,000 €
CLICK HERE for DETAILED PHOTOS
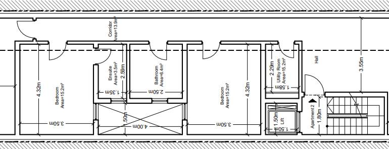
Qormi - 3 Bed 2 Bath 1St Flr Finished Apt
3+ bedroom apartment for sale • Qormi
This ready built three-bedroom apartment in Qormi is being offered finished (excluding bathrooms and internal doors).
The property features an open plan kitchen/dining/living with a front terrace, three double bedrooms with a terrace, master bedroom with an ensuite, main bathroom and a laundry room.
Optional garages are available at an extra price.
This property is ideal for families or as an investment, combines practicality with modern living in a central location.
Rooms and Features
Code
V022218
Locality
Qormi
Property type
3+ bedroom apartment
Price
295,000 €
Locals
1
Bedrooms
3
Bathrooms
2
Sqm
122
Balconies
3
Floor
1
Energetic class
Nondescript
Photos • Floorplans • Video
Photos
Options
Print Property sheet
Send property sheet by mail
Schedule a visit
RealEstate Brokers
Caruana Dylan
+356 9960 6829
+356 9998 6779
+356 2164 9500
dylan@sensaramalta.com
Information request
Name *
Phone *
E-mail *
Request Details *
I authorize the processing of my personal data according Regolamento UE n. 679/2016 -
Privacy Policy
I authorize the processing of data for marketing purposes, promotional activities, commercial offers and market surveys.
Send
Share on
We also recommend
for Sale
Bahrija - 3 Bedroom 2nd Floor Finished Apartment On Plan
480,000 €
for Sale
Attard - Duplex Apartment + 2 Car Garage
410,000 €
for Sale
Luqa - 3 Bedroom Corner Furnished Apartment
420,000 €
Keep default settings X
Use of cookies
This site uses cookies. Our (own) cookies and those of our Partners (third party cookies) are used to offer you a unique experience with us. For this reason, together with our partners, we collect and process non-sensitive information (such as the identifier of your device or the pages you visit).
At any time you can delete, modify or verify the information you share in
Cookie preference
or in our
Cookie Policy
and
Privacy Policy
.
Necessary
Functional
Profiling
Analytics
Accept all
Decline all
Accept selected
Cookie preference