Toggle navigation
(+356) 2164 9500
(+356) 9998 6779
info@sensaramalta.com
Head Office - Sensara Malta
Triq Santa Marija, Safi
09.00 to 19.00 hrs
Monday to Saturday
Home
Properties
Sales
Rentals
Foreign
About us
Services
Contacts
Send your request
Previous
Next
459,000 €
CLICK HERE for DETAILED PHOTOS
Naxxar - 3 Bedroom Apartment Finished
3+ bedroom apartment for sale • Naxxar
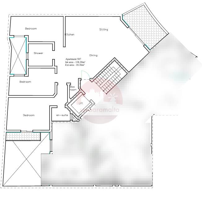
Within Naxxar comes this opportunity to acquire this 3rd-floor 3-bedroom apartment currently on plan, and it will be offered highly finished, excluding internal doors and bathrooms, and served with a lift.
It comprises an open-plan kitchen, a living/dining area overlooking a balcony, a box room, a master bedroom with an ensuite plus balcony, another 2 bedrooms, and a main bathroom. A home for life, designed with your well-being in mind.
Currently being built, completion date estimated to be the End March 2026
Optional lock-up garages/garage spaces are available at levels minus 1 and minus 2. Prices starting from €44,500
A perpetual ground rent of €116 for an apartment and €10 per garage/garage space. This can be redeemed on contract.
Rooms and Features
Code
V022078
Locality
Naxxar
Property type
3+ bedroom apartment
Price
459,000 €
Locals
1
Bedrooms
3
Bathrooms
2
Sqm
156
Balconies
2
Floor
3
Energetic class
Nondescript
Photos • Floorplans • Video
Photos
Options
Print Property sheet
Send property sheet by mail
Schedule a visit
RealEstate Brokers
Hughes Jeffrey
+356 9980 0004
+356 9998 6779
+356 9998 6775
hughes@sensaramalta.com
Information request
Name *
Phone *
E-mail *
Request Details *
I authorize the processing of my personal data according Regolamento UE n. 679/2016 -
Privacy Policy
I authorize the processing of data for marketing purposes, promotional activities, commercial offers and market surveys.
Send
Share on
We also recommend
for Sale
Birkirkara - Circa 119sqm 1st Floor 3 Bedroom Apartment Finished + Optional Garages
340,000 €
for Sale
Kappara - 3rd Floor 3 Bedroom Finished Apartment + Terrace + Views + Optional Garages
535,000 €
for Sale
Birkirkara - 2nd Floor 3 Bedroom 145sqm Apartment
358,500 €
Keep default settings X
Use of cookies
This site uses cookies. Our (own) cookies and those of our Partners (third party cookies) are used to offer you a unique experience with us. For this reason, together with our partners, we collect and process non-sensitive information (such as the identifier of your device or the pages you visit).
At any time you can delete, modify or verify the information you share in
Cookie preference
or in our
Cookie Policy
and
Privacy Policy
.
Necessary
Functional
Profiling
Analytics
Accept all
Decline all
Accept selected
Cookie preference